





Chorvatsko, Dalmácie ostrovy, Ciovo - Prostorný apartmán s bazénem a zahradou
ID: 2035/236Základní informace
Obytný prostor:80 m2
Pozemní prostor:160 m2
Ložnice:3
Koupelny:2
Podlahy:1
Vzdálenost moře:160 m
Výhody nemovitosti
- Bazén
- Luxusní
- Novostavby
- Výhled na moře
Vybavení
- Energetický certifikát
- Moderní
- Parkoviště
O nemovitosti
Luxusní apartmán s bazénem a zahradou je k prodeji v Okrug Gornji s částečným výhledem na moře. Nachází se ve skvělé lokalitě, v blízkosti moře, s přímým přístupem na pláž. Apartmán je orientován na sever a má vlastní vchod.
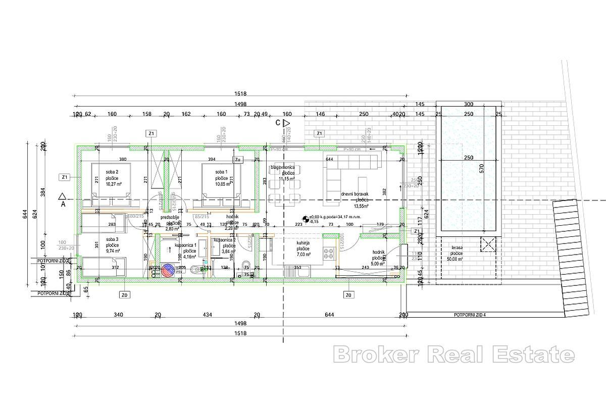
Nachází se v menším bytovém domě s pouze třemi apartmány a nachází se v přízemí budovy. Má rozlohu 80,08 m² a skládá se z chodby, dvou chodeb, tří ložnic, dvou koupelen, kuchyně s jídelnou a obývacího pokoje, který se otevírá na dlážděnou terasu a zahradu s bazénem o celkové rozloze 160,81 m². Zahrada a bazén poskytují další prostor pro odpočinek, opalování a trávení volného času venku.
K apartmánu náleží také dvě venkovní parkovací místa a při stavbě a vybavení byly použity vysoce kvalitní materiály (vysoce kvalitní obklady a sanitární keramika, klimatizace v každé místnosti, podlahové vytápění v celém apartmánu, hliníkové okenice, moskytiéry). Celý prostor je vybaven tak, aby umožňoval příjemný pobyt po celý rok.
Budova se nachází v klidné a atraktivní lokalitě, v blízkosti moře, promenády, restaurací a veškeré potřebné občanské vybavenosti. Je to jen pár minut jízdy od centra Trogiru a letiště Split, což dále zvyšuje její hodnotu, a to jak pro osobní použití, tak i jako turistickou investici.
Vzhledem k prostorné zahradě a bazénu je apartmán vynikající volbou pro všechny, kteří hledají nemovitost s dalším vybavením a v lokalitě blízko moře a centra města. Je vhodný i pro rodiny, které hledají moderní apartmán v klidném prostředí s kvalitní konstrukcí a funkčním uspořádáním.
Umístění
Ciovo, Dalmácie ostrovy
Čiovo se nachází ve střední Dalmácii, chrání město Trogir a záliv Kaštela. Na své severní části je spojen s pevninou dvěma mosty, jeden most je ve starém centru Trogiru a část Trogiru se vlastně rozprostírá na ostrov. Kromě části Trogir je na ostrově několik vesnic: Arbanija, Žedno, Okrug Gornji, Okrug Donji a Slatine.
Hledáte něco jiného?










