





Chorvatsko, Dalmácie ostrovy, Hvar - Novostavba - dvoupokojový byt s krytou terasou
ID: 2051/41Základní informace
Obytný prostor:59 m2
Pozemní prostor:5 m2
Ložnice:2
Koupelny:2
Vzdálenost moře:300 m
Výhody nemovitosti
- Novostavby
Vybavení
- Energetický certifikát
- Moderní
- Parkoviště
O nemovitosti
V klidné a příjemné osadě známé pro svou chráněnou zátoku a dobře udržovanou marinu, na ostrově Hvar, se staví nový rezidenční projekt s celkem 16 byty.
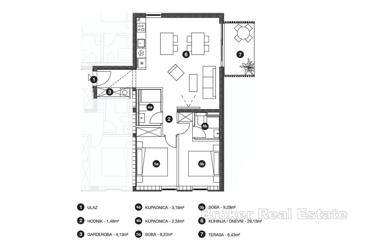
Ve druhém patře budovy A se nachází byt S6, který se skládá ze vstupní haly se šatní skříní, otevřeného prostorného obývacího pokoje s jídelnou a kuchyní, ze kterého je vstup na krytou terasu. Následuje koupelna a chodba vedoucí do dvou ložnic, z nichž jedna má vlastní koupelnu.
Byt je orientován na tři strany (SZ–JZ–SV), což zajišťuje dostatek přirozeného světla po celý den a příjemnou vzdušnost a otevřenost prostoru.
Při stavbě jsou použity kvalitní materiály, prvotřídní keramika, železobetonová konstrukce, fasádní systém s tepelnou izolací, trojskla, elektrické rolety, podlahové vytápění v koupelnách, klimatizace.
Projekt zajišťuje venkovní parkovací místa, z nichž některá budou krytá.
Dokončení výstavby je plánováno na začátek léta 2026.
Projekt se nachází v klidné lokalitě, pouhých 300 metrů od moře, v těsné blízkosti veškeré občanské vybavenosti – obchodů, restaurací, kaváren, přístavu a promenády.
Díky své poloze, třístranné orientaci a příjemné atmosféře je toto místo ideální pro celoroční bydlení, ale také jako bezpečná investice pro turistický pronájem.
* Cena zahrnuje DPH – kupující není povinen platit daň z nemovitosti
Umístění
Hvar, Dalmácie ostrovy
Hvar je chorvatský ostrov v Jaderském moři, který se nachází u dalmatského pobřeží, mezi ostrovy Brač, Vis a Korčula. Jeho svahy jsou pokryty borovými lesy, s vinicemi, olivovými háji, ovocnými sady a levandulovými poli v zemědělských oblastech. Klima se vyznačuje mírnými zimami a teplými léty s mnoha hodinami slunečního svitu.
Hledáte něco jiného?








