





Chorvatsko, Dalmácie ostrovy, Hvar - Novostavba - dvoupokojový byt s lodžií
ID: 2051/37Základní informace
Obytný prostor:60 m2
Pozemní prostor:65 m2
Ložnice:2
Koupelny:2
Podlahy:1
Vzdálenost moře:300 m
Výhody nemovitosti
- Novostavby
Vybavení
- Energetický certifikát
- Moderní
- Parkoviště
O nemovitosti
Na ostrově Hvar, v klidné a dobře udržované osadě známé pro svou chráněnou zátoku a přístav, probíhá nový rezidenční projekt, který zahrnuje celkem 16 bytů.
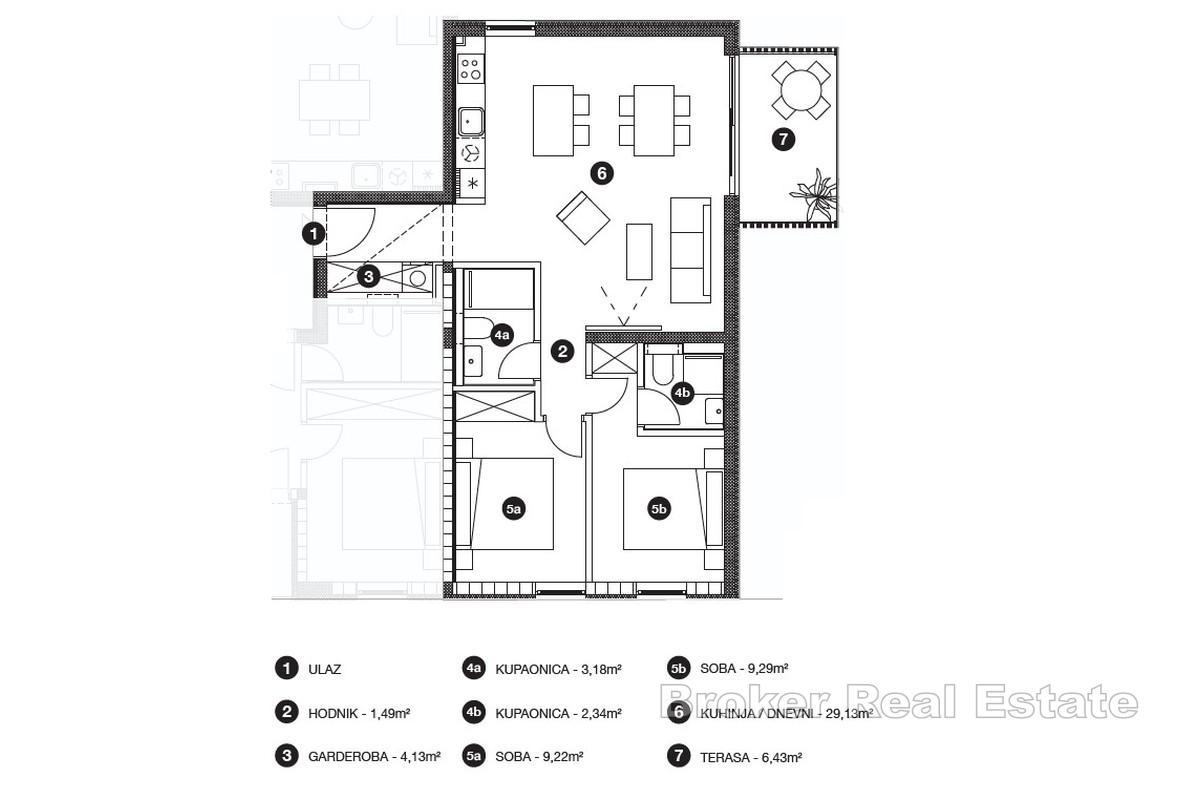
V prvním patře budovy A se nachází byt S3, jehož dispozice zahrnuje vstupní halu se šatní skříní, prostorný obývací pokoj s otevřeným konceptem propojený s kuchyní a jídelnou a výstupem na lodžii. Dole se nachází koupelna a chodba vedoucí do dvou ložnic, z nichž jedna má vlastní koupelnu.
Při stavbě jsou použity vysoce kvalitní materiály – železobetonová konstrukce, tepelně izolovaná fasáda, trojskla, elektrické rolety, podlahové vytápění v koupelnách, klimatizace a vysoce kvalitní keramika.
Součástí projektu jsou venkovní parkovací stání, z nichž část bude krytá.
Dokončení prací je plánováno na začátek léta 2026.
Projekt se nachází v klidné lokalitě, pouhých 300 metrů od moře a v blízkosti veškeré potřebné občanské vybavenosti – obchodů, restaurací, kaváren, přístavu a promenády.
Vzhledem ke své poloze a příjemnému okolí je to vynikající volba pro celoroční bydlení, ale také bezpečná investice pro turistický pronájem.
* Cena zahrnuje DPH – kupující není povinen platit daň z nemovitosti
Umístění
Hvar, Dalmácie ostrovy
Hvar je chorvatský ostrov v Jaderském moři, který se nachází u dalmatského pobřeží, mezi ostrovy Brač, Vis a Korčula. Jeho svahy jsou pokryty borovými lesy, s vinicemi, olivovými háji, ovocnými sady a levandulovými poli v zemědělských oblastech. Klima se vyznačuje mírnými zimami a teplými léty s mnoha hodinami slunečního svitu.
Hledáte něco jiného?







