





Chorvatsko, Dalmácie ostrovy, Hvar - Novostavba - jednopokojový apartmán, přízemí se zahradní terasou
ID: 2051/40Základní informace
Obytný prostor:36 m2
Pozemní prostor:8 m2
Ložnice:1
Koupelny:1
Vzdálenost moře:300 m
Výhody nemovitosti
- Novostavby
Vybavení
- Energetický certifikát
- Moderní
- Parkoviště
O nemovitosti
V dobře udržované pobřežní osadě na severní straně ostrova Hvar, známé svým přístavem a uvolněnou středomořskou atmosférou, se staví nový projekt se 16 apartmány.
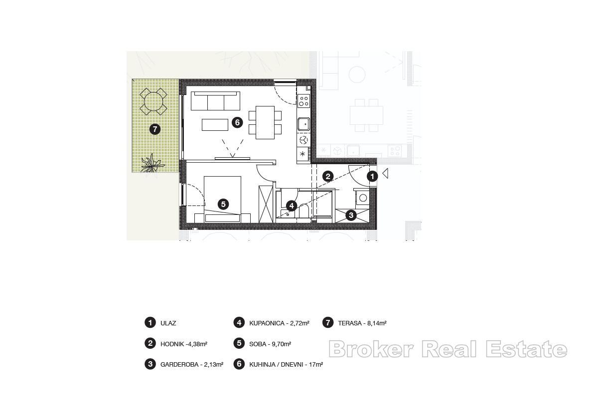
V přízemí budovy B se nachází apartmán S1 o celkové čisté ploše 44 m2, který se vyznačuje funkčním uspořádáním a moderním designem. Skládá se ze vstupní haly, šatny/úložné místnosti, koupelny a ložnice, zatímco otevřený obývací prostor s kuchyní a jídelnou vede na zahradní terasu ideální pro užívání si středomořského prostředí. Apartmán je oboustranně orientovaný (JV-JZ), což zajišťuje dostatek světla a příjemný pobyt po celý den.
Při výstavbě byly použity vysoce kvalitní materiály a moderní vybavení, včetně prvotřídní keramiky, podlahového vytápění v koupelnách a klimatizace ve všech místnostech. Projekt nabízí venkovní parkovací místa, z nichž některá budou krytá.
Dokončení výstavby je plánováno na začátek léta 2026. Projekt se nachází v klidné lokalitě, pouhých 300 metrů od moře, v těsné blízkosti veškeré potřebné občanské vybavenosti – obchodů, restaurací, kaváren, přístavu a promenády.
Díky své výhodné poloze a příjemné atmosféře je byt ideální volbou pro celoroční bydlení nebo bezpečnou investicí pro turistický pronájem.
* Cena zahrnuje DPH – kupující není povinen platit daň z nemovitosti
Umístění
Hvar, Dalmácie ostrovy
Hvar je chorvatský ostrov v Jaderském moři, který se nachází u dalmatského pobřeží, mezi ostrovy Brač, Vis a Korčula. Jeho svahy jsou pokryty borovými lesy, s vinicemi, olivovými háji, ovocnými sady a levandulovými poli v zemědělských oblastech. Klima se vyznačuje mírnými zimami a teplými léty s mnoha hodinami slunečního svitu.
Hledáte něco jiného?




