





Chorvatsko, Dalmátské pobřeží, Peljesac - Moderní vila ve výstavbě s výhledem na moře
ID: 2016/636Základní informace
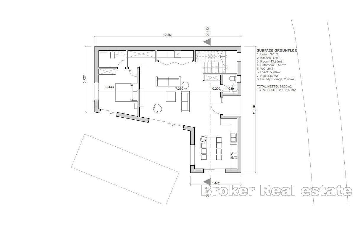
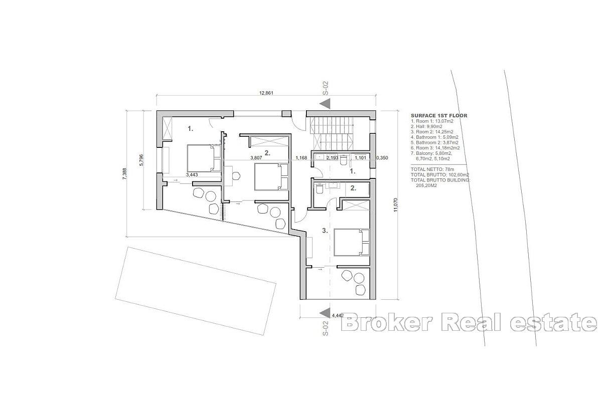
Obytný prostor:162 m2
Pozemní prostor:629 m2
Ložnice:4
Koupelny:3
Vzdálenost moře:100 m
Výhody nemovitosti
- Výhled na moře
- Novostavby
Vybavení
- Energetický certifikát
- Moderní
O nemovitosti
Moderní vila ve výstavbě s výhledem na otevřené moře na prodej, která se nachází na jižní straně poloostrova Pelješac.
Vila se rozkládá na dvou podlažích s celkovou obytnou plochou 162 m². Interiér nabízí čtyři prostorné ložnice a tři koupelny, takže je ideální pro rodiny nebo kupující hledající luxusní místo pro dovolenou.
Stavební pozemek, na kterém je vila postavena, má rozlohu 629 m², pravidelný obdélníkový tvar, s dobrou dostupností k hlavním komunikacím.
Vila bude dokončena do vysokého roh-bau stavu, který ponechává budoucímu majiteli možnost vybrat si dokončovací materiály a detaily interiéru dle vlastního přání.
Lokalita je mimořádně atraktivní a vzácná, nachází se v klidné vilové čtvrti s minimem sousedů, zajišťující naprosté soukromí. Vzdálenost k moři a pláži je pouhých 100 metrů, zatímco obchody, restaurace a další zařízení jsou v dosahu, v krátké pěší vzdálenosti.
Tato vila představuje mimořádný potenciál pro luxusní nemovitost v jedné z nejžádanějších částí poloostrova Pelješac. Vzácná příležitost pro kupující, kteří chtějí jedinečnou kombinaci moderní architektury, blízkost moře a možnost personalizace finální výzdoby.
Umístění
Peljesac, Dalmátské pobřeží
Pelješac je poloostrov v jižní Dalmácii v Chorvatsku. Od šíje, která začíná u Stonu, až po vrchol mysu Lovišta je dlouhá 65 km. Most Pelješac se klene nad mořským kanálem mezi Komarnou na severní pevnině a poloostrovem Pelješac, čímž prochází zcela přes chorvatské území a vyhýbá se jakémukoli hraničnímu přechodu s Bosnou a Hercegovinou v Neumu.
Hledáte něco jiného?








