





Chorvatsko, Dalmátské pobřeží, Split město, Meje - Meje, výborné byty v novostavbě
ID: 2043/55Základní informace
Obytný prostor:69 m2
Ložnice:2
Koupelny:1
Vzdálenost moře:20 m
Výhody nemovitosti
- Výhled na moře
- Novostavby
- Luxusní
Vybavení
- Energetický certifikát
- Garáž
- Moderní
- Parkoviště
O nemovitosti
Vynikající apartmány v novostavbě v Meje. Tyto luxusní apartmány se nacházejí na klidném místě ve městě Split, v blízkosti lesoparku Marjan, známé rekreační oblasti města, stejně jako krásných oblázkových pláží na jedné straně a centra a Splitu Riva 10 minut odtud. idylické prostředí a kombinace současného designu a jedinečného způsobu života. Kulturní atmosféra, klidná lokalita, rozmanitá nabídka služeb a zaručené bezpečí pro rodinu spolu s exkluzivním prostředím tvoří dokonalý životní a životní prostor.
Tato exkluzivní lokalita vám umožní plně si užít klidné prostředí plné zeleně, přírodních pláží, téměř nedotčené přírody a bohatého kulturního a historického dědictví.
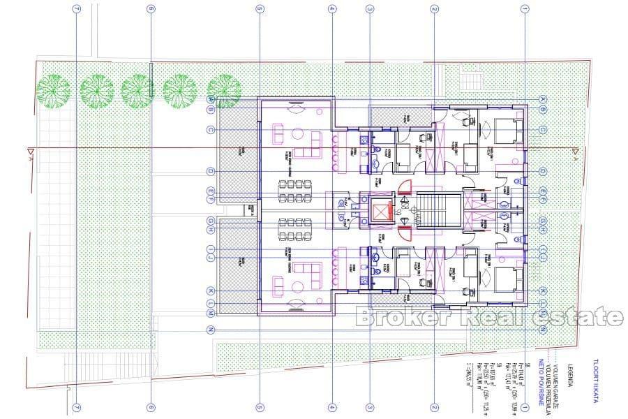
Jedná se o apartmány umístěné v přízemí a prvním patře. Byty výjimečné stavební kvality, navržené renomovaným chorvatským architektem, který dbal na každý detail, od interiéru, společných prostor, prostředí až po zajištění velké dávky soukromí. Spolu s koupí bytu je i možnost dokoupení podzemního garážového stání.
Jedná se o jedno- a dvoupokojové byty s výměrou od 51 m2 do 202 m2. Samotná orientace budovy obsáhla všechny čtyři světové strany. Podle koncepčního projektu jsou dvě varianty přízemí a budoucí obyvatel má možnost si variantu vybrat, přičemž první patro je navrženo jako čtyři byty.
Možnost 1 – přízemí:
S1 – 45,68 m2 s terasou = 51,18
S2 – 57,46 m2 se zahradou a terasou = 82,51 m2
S3 – 108 m2 se dvěma terasami a zahradou = 149,93 m2
Varianta 2 – přízemí:
S1 – 78,16 m2 s terasou = 83,66 m2
S2 – 135,15 m2 se dvěma terasami a zahradou 202,02 m2
První patro:
S4 – 45,04 m2 s balkonem = 51,07 m2
S5 – 59,40 m2 se dvěma balkony = 69,29 m2
S7 – 62,25 m2 se dvěma balkony = 73,15 m2
Krásná, klidná lokalita, přesto dostatečně blízko k městskému centru, výhled a blízkost moře, elegantní dekorace a špičkové vybavení dělají z těchto apartmánů ideální prostor pro rodinné bydlení, který je v naprosté harmonii s okolím, a zároveň má výborný potenciál jako investice pro turistické účely.
Umístění
Split město, Dalmátské pobřeží
Split je po hlavním městě Záhřebu druhé největší město Chorvatska, největší město v Dalmácii a největší město na chorvatském pobřeží. Leží na východním pobřeží Jaderského moře a rozkládá se na centrálním poloostrově a jeho okolí. Vnitroregionální dopravní uzel a oblíbená turistická destinace, město je spojeno s jadranskými ostrovy a Apeninským poloostrovem.
Hledáte něco jiného?










