




Chorvatsko, Dalmátské pobřeží, Zadarská oblast, Sveti Petar na Moru - Byt se 2 ložnicemi se střešní terasou
ID: 2043/152Základní informace
Obytný prostor:63 m2
Pozemní prostor:68 m2
Ložnice:2
Koupelny:2
Podlahy:1
Vzdálenost moře:150 m
Výhody nemovitosti
- Výhled na moře
- Novostavby
Vybavení
- Energetický certifikát
- Moderní
- Parkoviště
O nemovitosti
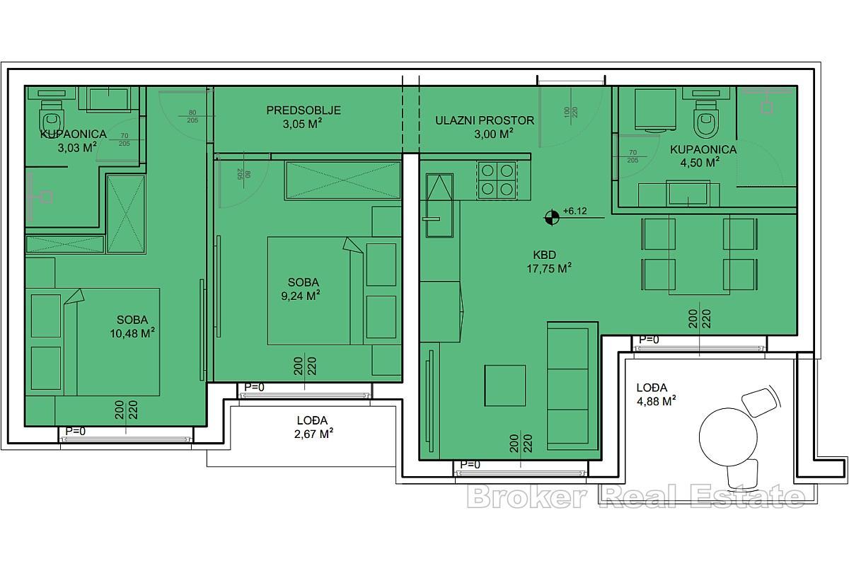
Byt s čistou užitnou plochou 51 m2, 3+1, se nachází v novostavbě nedaleko Zadaru.
Byt sestává z hlavního vchodu, který poskytuje okamžitý přístup do společných prostor, tzn. kuchyně, jídelna a obývací pokoj, ze kterého je vstup na prostornou lodžii. Apartmán má dvě ložnice, z nichž jedna má vlastní koupelnu a také společnou koupelnu.
Jedna ložnice se otevírá na lodžii s výhledem na moře.
Schody na společném schodišti vedou na soukromou střešní terasu s terasou a otevřeným výhledem na moře.
Výborná poloha v blízkosti pláže, hlavní silnice, stejně jako veškeré potřebné vybavení pro bydlení nebo dovolenou. Byt je 150 metrů od nejbližší pláže, město Zadar je vzdálené necelých 20 kilometrů a letiště je 15 kilometrů od budovy.
Umístění
Zadarská oblast, Dalmátské pobřeží
Zadarská oblast se rozkládá tak, že zahrnuje severodalmatské pobřeží a pobřežní oblasti Ravni Kotari, Bukovica, Pozrmanja a Jižní Lika. Pobřežní oblast zahrnuje široký pás od města Biograd na Moru až po pohoří Velebit. Vnitrozemskou pobřežní oblast tvoří rozsáhlá rovinatá oblast Ravni Kotari. Celá oblast je dobře propojena moderní dálnicí.
Hledáte něco jiného?