





Croatie, Iles de Dalmatie, Ciovo - Appartement deux chambres avec vue sur la mer
ID: 2035/251Informations de base
Espace vital:66 m2
Espace terrestre:25 m2
Chambres:2
Salles de bain:2
Planchers:1
Distance de la mer:80 m
Avantages immobiliers
- Vue sur la mer
- Nouvelle construction
- De luxe
Commodités
- Certificat énergétique
- Moderne
- Parking
À propos de la propriété
Appartement deux chambres non loin de la mer, sur la côte nord de l’île de Čiovo, dans un quartier calme, idéal pour y vivre à l’année ou pour des vacances. Il est situé au premier étage d’un immeuble résidentiel récent entouré de bâtiments similaires, à proximité immédiate de toutes les commodités importantes. Son orientation nord-est lui assure une luminosité naturelle abondante le matin et une température agréable en été.
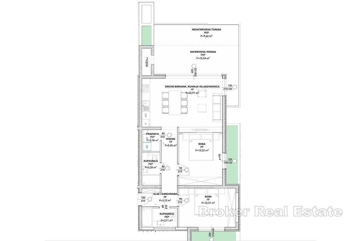
D’une superficie de 66,08 m², l’appartement comprend une entrée avec un vestiaire offrant de nombreux rangements, un couloir desservant toutes les pièces, deux salles de bains modernes et bien équipées, deux chambres confortables, une buanderie et une cuisine avec salle à manger et salon donnant accès à une spacieuse terrasse couverte de 15,54 m² et à une terrasse découverte de 9,66 m² avec vue dégagée sur la mer.
L’appartement est vendu non meublé et est équipé de la climatisation dans toutes les pièces et du chauffage au sol, pour un confort supplémentaire en hiver. Une place de parking extérieure est également disponible derrière l’immeuble, près de l’entrée principale, pour un accès facile et un confort accru.
Ce bien est idéal pour la location touristique grâce à sa proximité avec toutes les commodités, notamment les commerces, les restaurants, les plages et les promenades, ainsi qu’avec l’aéroport, situé à seulement 13 km et reliant l’île à de nombreuses destinations européennes.
Emplacement
Ciovo, Iles de Dalmatie
Ciovo est situé en Dalmatie centrale et protège la ville de Trogir et le golfe de Kaštela. Dans sa partie nord, elle est reliée au continent par deux ponts, l'un d'entre eux se trouvant dans le vieux centre de Trogir et une partie de Trogir s'étend actuellement sur l'île. Outre la partie de Trogir, l'île compte plusieurs villages : Arbanija, Žedno, Okrug Gornji, Okrug Donji et Slatine.
Vous cherchez autre chose?









