





Chorvatsko, Dalmácie ostrovy, Ciovo - Dvoupokojový apartmán s výhledem na moře
ID: 2035/251Základní informace
Obytný prostor:66 m2
Pozemní prostor:25 m2
Ložnice:2
Koupelny:2
Podlahy:1
Vzdálenost moře:80 m
Výhody nemovitosti
- Výhled na moře
- Novostavby
- Luxusní
Vybavení
- Energetický certifikát
- Moderní
- Parkoviště
O nemovitosti
Dvoupokojový apartmán nedaleko moře, na severní straně ostrova Čiovo, se nachází v klidné osadě ideální pro celoroční bydlení nebo pro turistické účely. Nachází se v prvním patře nově postaveného bytového domu obklopeného podobnými budovami, v bezprostřední blízkosti veškeré důležité občanské vybavenosti a je orientován na severovýchod, což zajišťuje dostatek přirozeného světla během rána a příjemnou teplotu v létě.
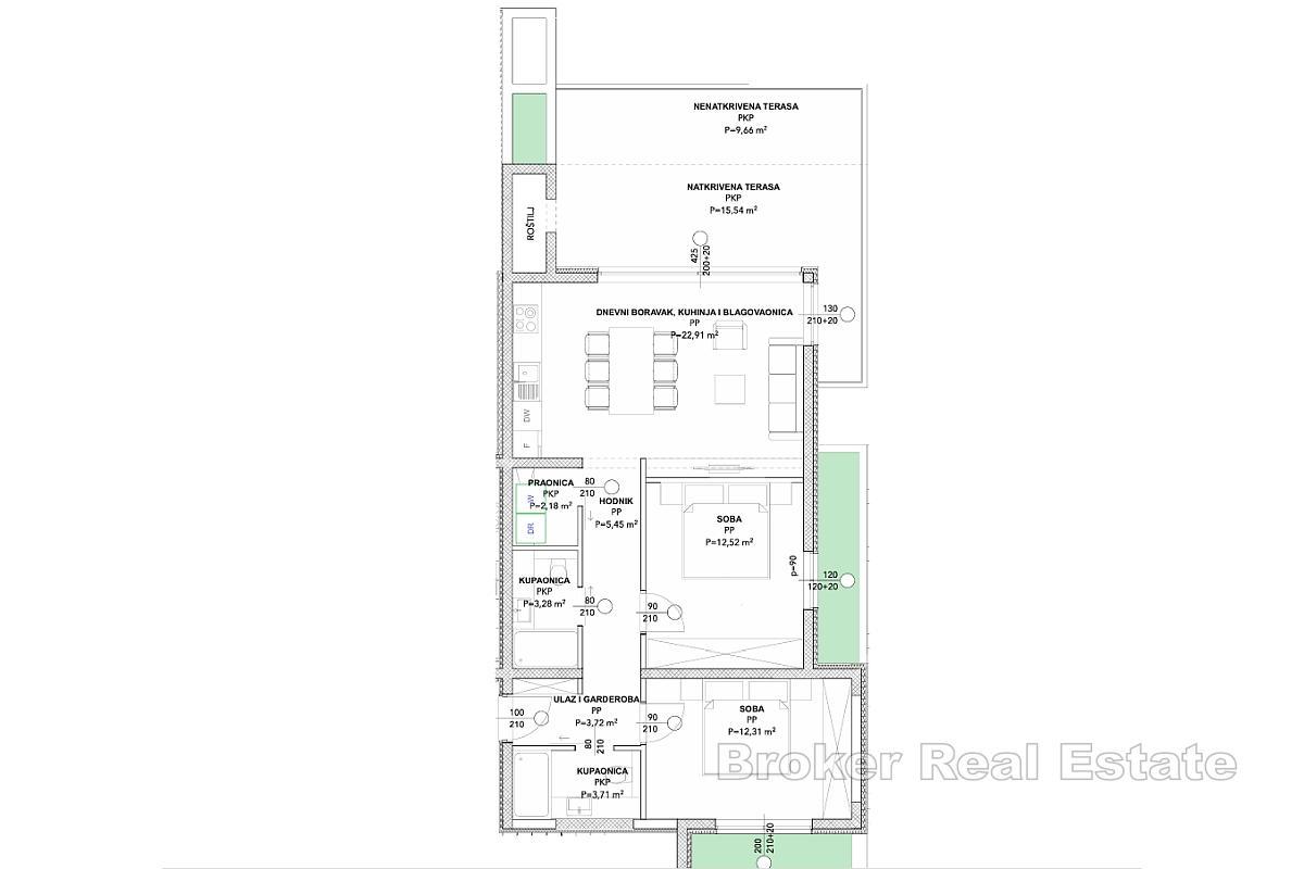
Byt má 66,08 m² a skládá se ze vstupní haly a šatny s dostatkem úložného prostoru, chodby propojující všechny pokoje, dvou moderních koupelen s kvalitním vybavením, dvou pohodlných ložnic, prádelny a kuchyně s jídelnou a obývacím pokojem, ze kterého je přístup na prostornou krytou terasu o rozloze 15,54 m² a nekrytou terasu o rozloze 9,66 m² s otevřeným výhledem na moře.
Byt se prodává nezařízený a je vybaven klimatizací ve všech pokojích a podlahovým vytápěním, které poskytuje dodatečný komfort v zimních měsících. K dispozici je také jedno venkovní parkovací místo za budovou, které se nachází poblíž hlavního vchodu, což umožňuje snadný přístup a větší pohodlí.
Nemovitost je vynikající pro turistické pronájmy díky své blízkosti veškeré občanské vybavenosti v této lokalitě, včetně obchodů, restaurací, pláží a promenád, a také letiště, které je vzdálené pouhých 13 km a spojuje ostrov s mnoha evropskými destinacemi.
Umístění
Ciovo, Dalmácie ostrovy
Čiovo se nachází ve střední Dalmácii, chrání město Trogir a záliv Kaštela. Na své severní části je spojen s pevninou dvěma mosty, jeden most je ve starém centru Trogiru a část Trogiru se vlastně rozprostírá na ostrov. Kromě části Trogir je na ostrově několik vesnic: Arbanija, Žedno, Okrug Gornji, Okrug Donji a Slatine.
Hledáte něco jiného?









