Hors marché

Hors marché




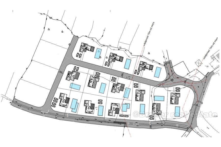
Croatie, Iles de Dalmatie, Pasman - Terrain à bâtir, à vendre
ID: 679/40PrixSur demande
ID: 679/40
Informations de base
Espace terrestre:10857 m2
Distance de la mer:10 m
Front de mer
Avantages immobiliers
- Vue sur la mer
À propos de la propriété
Terrain à bâtir près de la mer, avec projet sur 10857 m2.
Emplacement
Pasman, Iles de Dalmatie
Pašman est une île de l'Adriatique au large de la Dalmatie du Nord en Croatie d'une superficie de 60,11 km2, située au sud de Zadar, entourée par les îles d'Ugljan au nord-ouest, d'Iž à l'ouest et de Dugi Otok et Žut au sud-ouest. . Parmi toutes les îles de l'archipel croate, Pašman possède la plus grande surface verte par rapport à sa superficie totale.
Vous cherchez autre chose?



