Obustavljena prodaja

Obustavljena prodaja




Hrvatska, Dalmacija otoci, Pašman - Građevinsko zemljište, na prodaju
ID: 679/40CijenaNa zahtjev
ID: 679/40
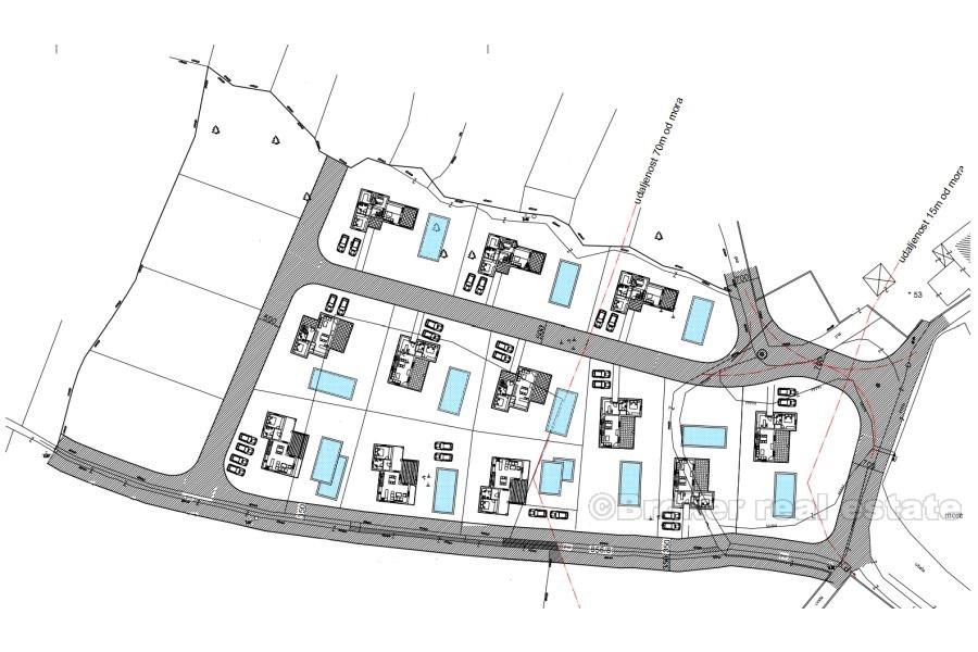
Osnovni podaci
Zemljište:10857 m2
Udaljenost od mora:10 m
Prvi red
Prednosti nekretnine
- Pogled na more
O nekretnini
Građevno zemljište prvi red uz more, sa projektom, na 10857 m2.
Lokacija
Pašman, Dalmacija otoci
Pašman je jadranski otok uz obalu sjeverne Dalmacije u Hrvatskoj s površinom od 60,11 km2, smješten južno od Zadra, okružen otocima Ugljanom na sjeverozapadu, Ižem na zapadu te Dugim Otokom i Žutom na jugozapadu. . Od svih otoka hrvatskog arhipelaga, Pašman ima najveću zelenu površinu s obzirom na ukupnu površinu.
Tražiš li nešto drugo?



