





Hrvatska, Dalmacija obala, Primošten - Dvosoban stan s terasom
ID: 5445/30Osnovni podaci
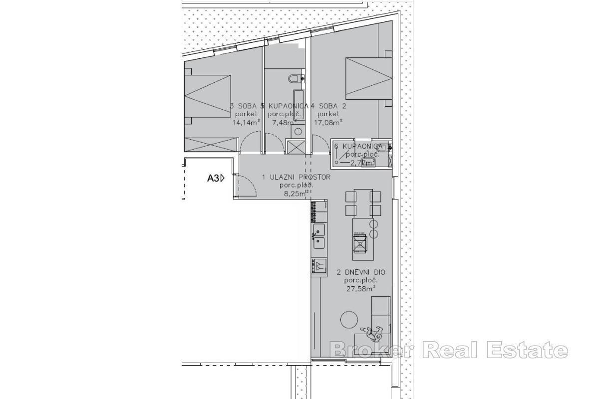
Stambeni prostor:75 m2
Sobe:2
Kupaonice:2
Udaljenost od mora:500 m
Prednosti nekretnine
- Pogled na more
- Novogradnja
Pogodnosti
- Energetski certifikat
- Garaža
- Moderno
- Parking
O nekretnini
Posjedujemo u prodaji prekrasnog dvosobnog stana smještenog u novoizgrađenoj zgradi. Zbog svoje pozicije, stan ima prekrasan pogled na more.
Ukupne je stambene površine od 75m2. Sastoji se od dvije prostrane spavaće sobe, dvije kupaonice te dnevnog prostora koji objedinjuje dnevni boravak, kuhinju te blagovaonicu. Iz dnevnog boravka može se izaći na djelomično natkrivenu terasu površine od oko 8m2.
U sklopu stana dolaze jedno garažno mjesto i ostava.
U izgradnji su korišteni visokokvalitetni materijali, a stan je dodatno opremljen roletama na motorni pogon, komaricama na svim otvorima te električnim podnim grijanjem koje je provedeno kroz cijeli prostor (osim ispod fiksnog namještaja).
Ovaj apartman idealan je izbor za ulaganje, bilo da ga planirate koristiti za turistički najam ili kao ugodnu destinaciju za obiteljski odmor.
Lokacija
Primošten, Dalmacija obala
Primošten je naselje i općina u Šibensko-kninskoj županiji, Hrvatska. Nalazi se na jugu, između gradova Šibenika i Trogira, na obali Jadranskog mora. Primošten je poznat po svojim ogromnim i prekrasnim vinogradima. Najveća plaža u Primoštenu zove se Raduča, a njen manji dio, Mala Raduča, proglašena je jednom od 10 najljepših plaža u Hrvatskoj.
Tražiš li nešto drugo?










