





Kroatien, Dalmatien Küste, Primosten - Zwei-Zimmer-Wohnung mit Terrasse
ID: 5445/30Grundinformation
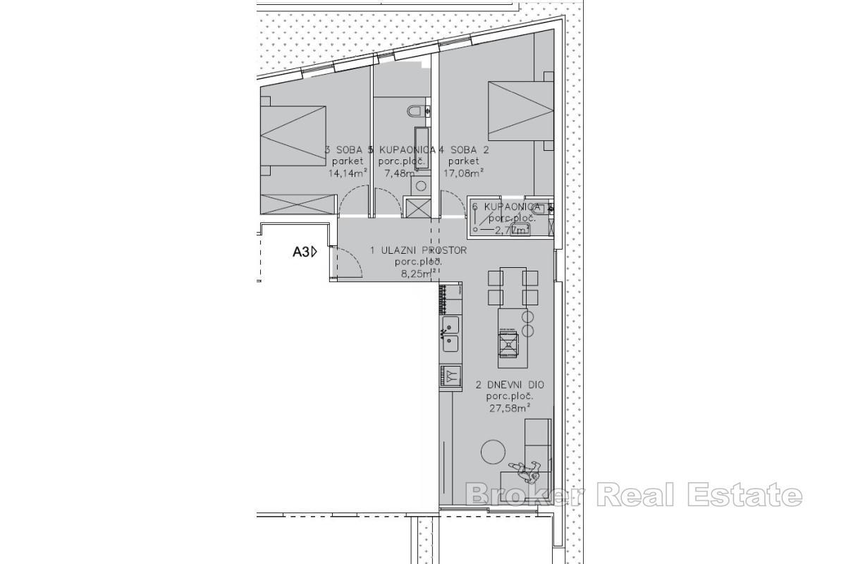
Wohnfläche:75 m2
Schlafzimmer:2
Badezimmer:2
Meeresentfernung:500 m
Immobilienvorteile
- Meerblick
- Neubau
Annehmlichkeiten
- Energiezertifikat
- Garage
- Modern
- Parken
Über die Immobilie
Wir bieten eine schöne Zwei-Zimmer-Wohnung in einem Neubau zum Verkauf an. Dank ihrer Lage bietet die Wohnung einen herrlichen Meerblick.
Die Wohnfläche beträgt insgesamt 75 m². Sie besteht aus zwei geräumigen Schlafzimmern, zwei Badezimmern und einem Wohnbereich, der Wohnzimmer, Küche und Esszimmer vereint. Vom Wohnzimmer aus gelangt man auf eine ca. 8 m² große, teilweise überdachte Terrasse.
Zur Wohnung gehören ein Garagenstellplatz und ein Abstellraum.
Beim Bau wurden hochwertige Materialien verwendet. Die Wohnung ist zusätzlich mit motorisierten Rollläden, Moskitonetzen an allen Fenstern und einer elektrischen Fußbodenheizung ausgestattet, die sich über die gesamte Wohnung erstreckt (außer unter fest installierten Möbeln).
Diese Wohnung ist eine ideale Kapitalanlage, egal ob Sie sie als Ferienimmobilie vermieten oder als komfortables Feriendomizil für die Familie nutzen möchten.
Standort
Primosten, Dalmatien Küste
Primošten ist ein Dorf und eine Gemeinde in der Gespanschaft Šibenik-Knin, Kroatien. Sie liegt im Süden, zwischen den Städten Šibenik und Trogir, an der Adriaküste. Primošten ist berühmt für seine riesigen und wunderschönen Weinberge. Der größte Strand in Primošten heißt Raduča und sein kleinerer Teil, Mala Raduča, wird zu einem der 10 schönsten Strände Kroatiens gewählt.
Suchen Sie etwas anderes?










