





Croazia, Costa Dalmazia, Makarska - Terreno edificabile, in vendita
ID: 762/40Informazioni di base
Spazio terrestre:2698 m2
Vantaggi della proprietà
- Vista sul mare
Sulla proprietà
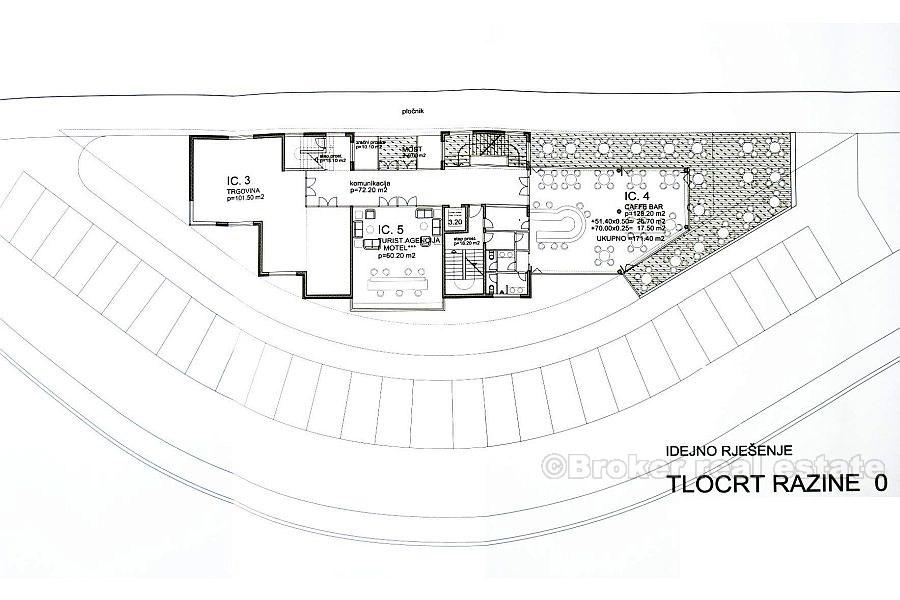
Terreno edificabile vicino a Makarska, è incluso nel programma croato per il trasporto dei mezzi di trasporto come solo punto di riposo di parcheggio sulla riviera di Makarska. È situato accanto alla strada principale ed è ideale per gli oggetti di costruzione approvati su tre livelli.
Livello 0 assicura la possibilità di costruire negozi, caffe bar – ristorante fast food, agenzia di viaggi e cambio, stazione di gas / benzina o oggetti simili disponibili per i servizi di viaggio.
Livello +1 assicura la possibilità di costruire motel da 10 a 12 camere con grande terrazza con vista panoramica su Makarska e sul mare.
Livello -1 ha accesso distaccato dalla strada principale. Questo spazio ha molteplici possibilità di utilizzo (negozi regolari o grossisti, negozi di auto e auto, manutenzione auto, capacità di motel estesa, discoteca ecc.)
Possibile spazio di costruzione: 1975 m2. Il corridoio per infrastrutture interne per la strada statale D-8 è autorizzato a costruire oggetti per servizi associati per i conducenti e viaggiatori:
– MOTEL
– INDUSTRIA DI CATERING
– NEGOZIO
– STAZIONE GAS / PETROL
– MANUTENZIONE
– PUBBLICITÀ E RESTO
Posizione
Makarska, Costa Dalmazia
Makarska è un importante centro turistico regionale, situato su una baia a forma di ferro di cavallo tra i monti Biokovo e il mare Adriatico. La città è nota per il suo lungomare bordato di palme, dove caffè, bar e boutique si affacciano sul porto. Makarska è il centro della riviera di Makarska, una popolare destinazione turistica sotto il monte Biokovo.
Stai cercando qualcos'altro?







