





Kroatia, Dalmatia kysten, Makarska - Byggegrunn, til salgs
ID: 762/40Grunnleggende informasjon
Land plass:2698 m2
Eiendomsfordeler
- Havutsikt
Om eiendommen
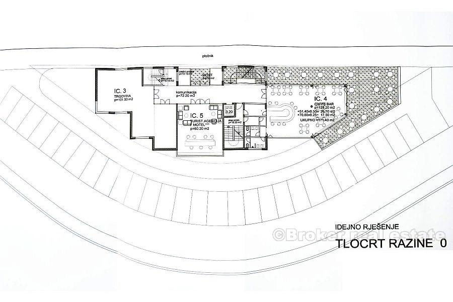
Tomt for bygging nær Makarska, er inkludert i kroatisk minister for transportprogram som eneste parkeringsplass på Makarska Riviera. Den ligger ved siden av hovedveien, og er ideell for godkjente byggobjekter på tre nivåer.
Nivå 0 sikrer mulighet for bygging av butikker, cafe bar – fastfood restaurant, reisebyrå og utvekslingskontor, bensinstasjon eller lignende gjenstander tilgjengelig for reisetjenester.
Nivå 1 garanterer muligheten for bygging av motell med 10 til 12 rom med stor terrasse med panoramautsikt over Makarska og havet.
Nivå -1 har frittliggende tilgang fra hovedveien. Denne plassen har flere bruksmuligheter (vanlige butikker eller grossist-, bil- og bildelagerbutikker, bilvedlikehold, utvidet motelkapasitet, diskotek osv.)
Mulig byggeplass: 1975 m2. Innebygd infrastrukturkorridor for statsveien D-8 får lov til å bygge objekter for tilknyttede tjenester for førere og reisende:
– MOTEL
– CATERING INDUSTRI
– BUTIKK
– GAS / PETROL STATION
– VEDLIKEHOLD
– ANNONSERING OG REST
Lokasjon
Makarska, Dalmatia kysten
Makarska er et fremtredende regionalt turistsenter, som ligger i en hesteskoformet bukt mellom Biokovo-fjellene og Adriaterhavet. Byen er kjent for sin palmekantede promenade, hvor kafeer, barer og butikker har utsikt over havnen. Makarska er sentrum av Makarska-rivieraen, et populært turistmål under Biokovo-fjellet.
Leter du etter noe annet?






