





Chorwacja, Dalmacja wybrzeże, Makarska - Grunty budowlane, na sprzedaż
ID: 762/40Podstawowe informacje
Przestrzeń lądowa:2698 m2
Zalety nieruchomości
- Widok morza
O nieruchomości
Teren budowlany w okolicach miejscowości Makarska jest włączony do chorwackiego ministra transportu jako jedyny punkt parkingowy na Riwierze Makarskiej. Znajduje się tuż obok głównej drogi i jest idealny do zatwierdzania obiektów budowlanych na trzech poziomach.
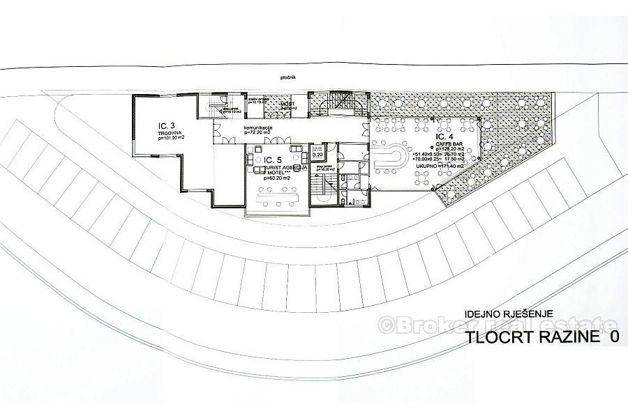
Poziom 0 zapewnia możliwość budowy kawiarni, baru kawiarni – restauracji fast food, biura podróży i kantoru, stacji paliwowo-gazowej lub podobnych obiektów dostępnych w podróży.
Poziom +1 zapewnia możliwość budowy motelu z 10 do 12 pokojami z ogromnym tarasem z panoramicznym widokiem na Makarską i nadmorską.
Poziom -1 ma oddzielny dostęp z drogi głównej. Ta przestrzeń ma wiele możliwości wykorzystania (regularne sklepy lub hurtownie, sklepy z częściami samochodowymi i samochodowymi, utrzymanie samochodu, zwiększona pojemność motelu, dyskoteka itp.)
Możliwa przestrzeń budowlana: 1975 m2. Wewnętrzny korytarz infrastruktury dla drogi krajowej D-8 ma pozwolenie na budowę obiektów związanych z usługami dla kierowców i podróżnych:
– MOTEL
– branża gastronomiczna
– SKLEP
– Stacja paliw gazowych / benzynowych
– KONSERWACJA
– REKLAMA I REST
Lokalizacja
Makarska, Dalmacja wybrzeże
Makarska to znaczący regionalny ośrodek turystyczny, położony w zatoce w kształcie podkowy pomiędzy górami Biokovo a Morzem Adriatyckim. Miasto słynie z promenady otoczonej palmami, przy której kawiarnie, bary i butiki wychodzą na port. Makarska jest centrum Riwiery Makarskiej, popularnej miejscowości turystycznej pod górą Biokovo.
Szukasz czegoś innego?







