





Croazia, Costa Dalmazia, Trogir - Terreno edificabile con progetto e vista panoramica sul mare
ID: 2022/475Informazioni di base
Spazio terrestre:530 m2
Distanza dal mare:400 m
Vantaggi della proprietà
- Vista sul mare
Sulla proprietà
In vendita un terreno edificabile situato nei pressi della città di Traù. Il terreno ha una superficie totale di 530 m², è di forma regolare e si trova in posizione elevata.
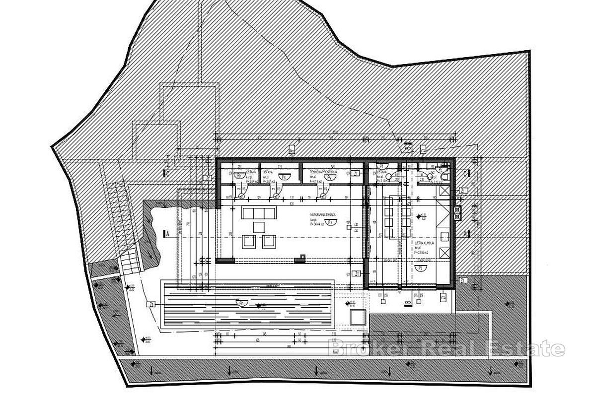
Il terreno è dotato di un permesso di costruzione valido per la costruzione di una villa su tre piani. La villa avrà una superficie totale di 247 m² e sarà dotata di piscina esterna, terrazza e solarium. Il progetto prevede quattro ampie camere da letto, ognuna con bagno privato e accesso a una terrazza con vista panoramica sul mare.
Il seminterrato è destinato a soggiorno con cucina estiva di 28 m², dispensa e bagno per gli ospiti. Inoltre, ci saranno una terrazza coperta di 34,5 m², due ulteriori locali dispensa e un locale tecnico.
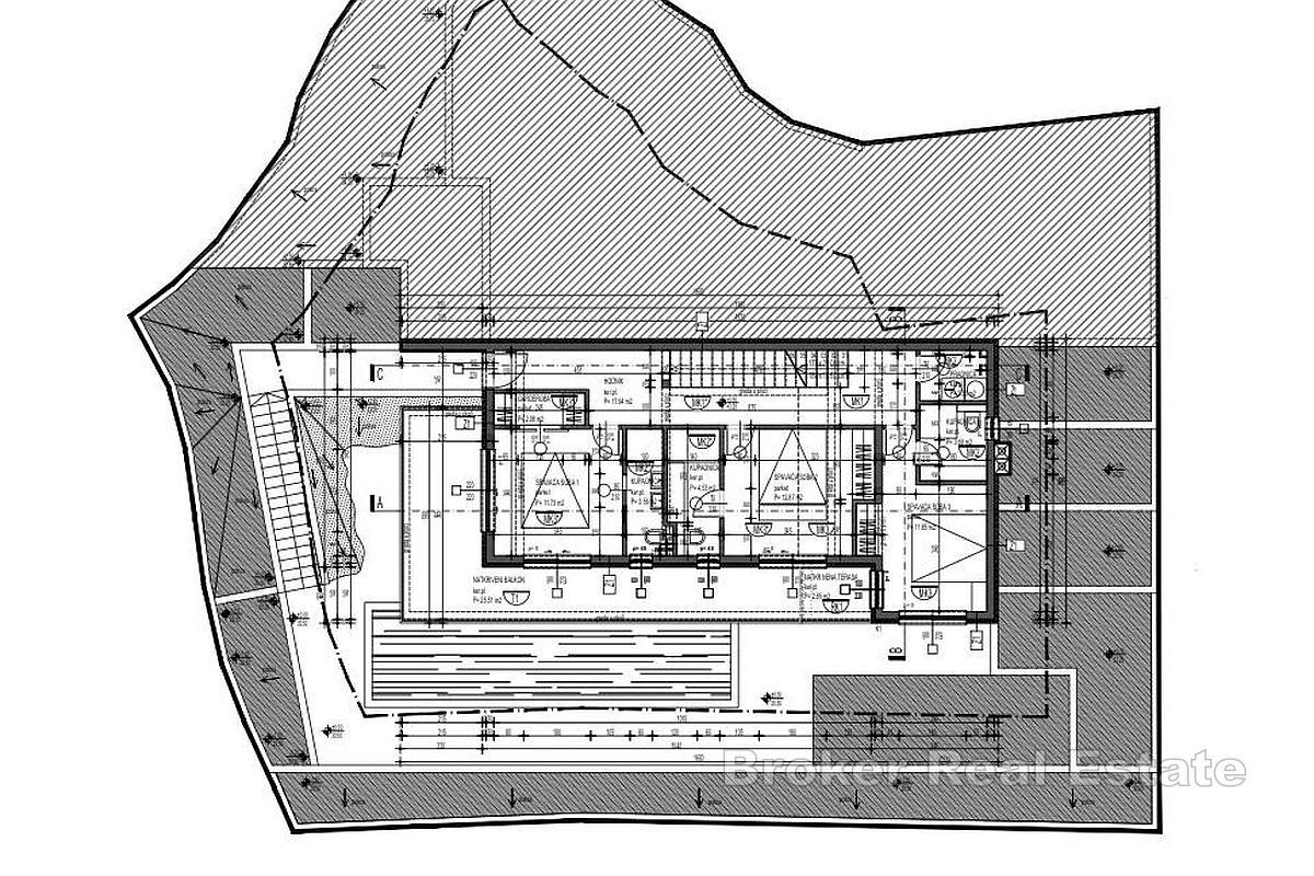
Il piano terra comprende tre comode camere da letto, ciascuna con bagno privato e accesso a un balcone. La camera da letto principale avrà anche una cabina armadio. Questo piano dispone anche di un corridoio e di una lavanderia.
L’ultimo piano è riservato a un ampio soggiorno, cucina e sala da pranzo open space, oltre a un’ulteriore camera da letto con bagno privato. Questo piano offre anche l’accesso a un ampio balcone e a una terrazza con vista aperta sul mare.
Il progetto è stato attentamente progettato in modo che tutti gli spazi siano orientati verso sud, il che permetterà alla villa di godere di molta luce naturale. Ampie vetrate offrono una vista libera sul paesaggio circostante e sul mare, rendendo l’ambiente luminoso e arioso.
Il terreno dista solo 400 metri dal mare e tutti i servizi necessari sono nelle vicinanze. Dista 2 chilometri dal centro di Traù e soli 9 km dall’aeroporto di Spalato.
Posizione
Trogir, Costa Dalmazia
Trogir è una città storica e un porto sulla costa adriatica nella contea di Spalato e Dalmazia, in Croazia. La storica città di Trogir è situata su una piccola isola tra la terraferma croata e l'isola di Čiovo. Si trova a 27 chilometri a ovest della città di Spalato. Dal 1997 il centro storico di Trogir è stato inserito nell'elenco dei patrimoni dell'umanità dell'UNESCO.
Stai cercando qualcos'altro?










