





Chorvatsko, Dalmátské pobřeží, Trogir - Stavební pozemek s projektem a panoramatickým výhledem na moře
ID: 2022/475Základní informace
Pozemní prostor:530 m2
Vzdálenost moře:400 m
Výhody nemovitosti
- Výhled na moře
O nemovitosti
Na prodej je stavební pozemek nacházející se nedaleko města Trogir. Pozemek má celkovou rozlohu 530 m2, je pravidelného tvaru a nachází se na vyvýšeném místě.
Pozemek má platné stavební povolení na výstavbu vily o třech podlažích. Vila bude mít celkovou rozlohu 247 m² a bude vybavena venkovním bazénem, terasou a sluneční terasou. Plánovaný projekt zahrnuje čtyři prostorné ložnice, každá s vlastní koupelnou a přístupem na terasu s panoramatickým výhledem na moře.
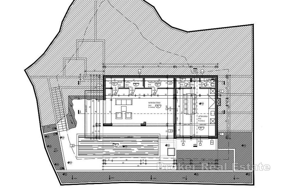
Suterén je navržen pro obývací pokoj s letní kuchyní o rozloze 28 m², spíží a toaletou pro hosty. Kromě toho bude k dispozici krytá terasa o rozloze 34,5 m², dvě další spíže a technická místnost.
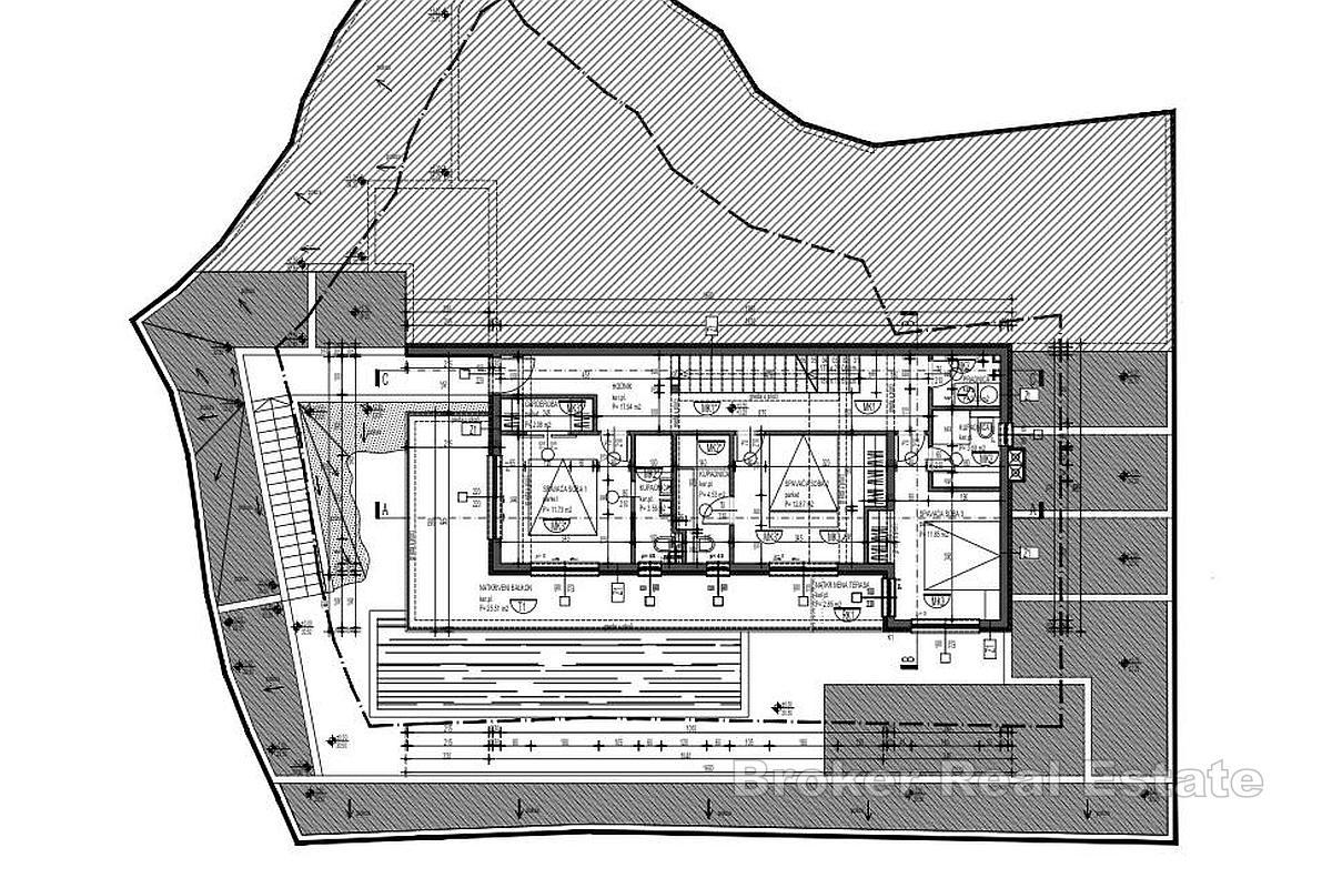
V přízemí se nacházejí tři pohodlné ložnice, každá s vlastní koupelnou a přístupem na balkon. Hlavní ložnice bude mít také šatnu. Toto patro má také chodbu a prádelnu.
Poslední patro je vyhrazeno pro velký obývací pokoj, kuchyň a jídelnu s konceptem otevřeného prostoru a další ložnici s vlastní koupelnou. Toto patro má také přístup na velký balkon a terasu s otevřeným výhledem na moře.
Projekt byl pečlivě navržen tak, aby všechny prostory byly orientovány na jih, což vile umožní dostatek přirozeného světla. Velké prosklené stěny poskytují nerušený výhled na okolní krajinu a moře, díky čemuž je krajina světlá a vzdušná.
Pozemek je vzdálen pouhých 400 m od moře a v blízkosti se nachází veškerá potřebná občanská vybavenost. Je vzdálen 2 kilometry od centra Trogiru a pouhých 9 km od letiště Split.
Umístění
Trogir, Dalmátské pobřeží
Trogir je historické město a přístav na pobřeží Jaderského moře ve Splitsko-dalmatské župě v Chorvatsku. Historické město Trogir se nachází na malém ostrově mezi chorvatskou pevninou a ostrovem Čiovo. Leží 27 kilometrů západně od města Split. Od roku 1997 je historické centrum Trogiru zařazeno na seznam světového dědictví UNESCO.
Hledáte něco jiného?










