





Hrvatska, Dalmacija obala, Trogir - Građevinsko zemljište s projektom i panoramskim pogledom na more
ID: 2022/475Osnovni podaci
Zemljište:530 m2
Udaljenost od mora:400 m
Prednosti nekretnine
- Pogled na more
O nekretnini
Na prodaju je građevinsko zemljište smješteno u blizini grada Trogira. Zemljište je ukupne površine 530m2, pravilnog je oblika i nalazi se na povišenoj poziciji.
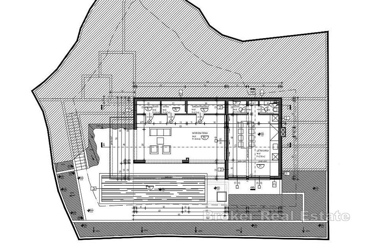
Zemljište ima pravomoćnu građevinsku dozvolu za izgradnju vile na tri etaže. Vila će imati ukupnu površinu od 247 m² i bit će opremljena vanjskim bazenom, terasom i sunčalištem. Planirani projekt uključuje četiri prostrane spavaće sobe, svaka s vlastitom en-suite kupaonicom i izlazom na terasu s panoramskim pogledom na more.
Suteren je predviđen za dnevni boravak s ljetnom kuhinjom od 28 m², ostavu i gostinjski toalet. Pored toga nalaziti će se natkrivena terasa od 34,5 m², dvije dodatne ostave i tehnička prostorija.
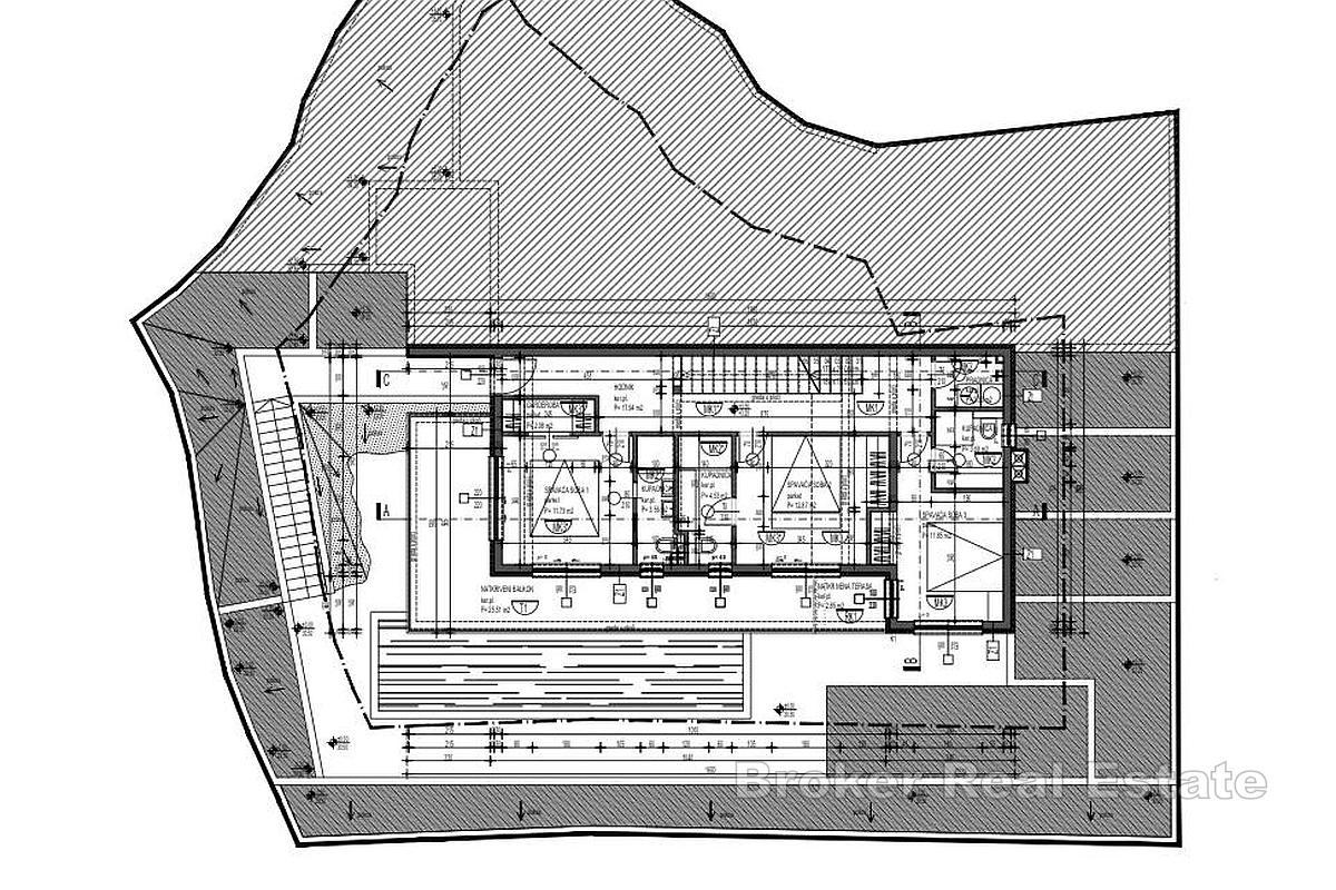
Etaža prizemlja uključuje tri komforne spavaće sobe, svaka sa svojom vlastitom kupaonicom i izlazom na balkon. Master spavaća soba imat će i walk-in ormar. Na ovoj etaži također su i hodnik i vešeraj.
Posljednja etaža rezervirana je za veliki dnevni boravak, kuhinju i blagovaonicu open space koncepta, uz dodatnu spavaću sobu s vlastitom kupaonicom. Na ovoj etaži je i izlaz na veliki balkon i terasu s otvorenim pogledom na more.
Projekt je pažljivo osmišljen kako bi svi prostori bili orijentirani prema jugu, čime će vila imati obilje prirodnog svjetla. Velike staklene stijene omogućuju neometan pogled na okolni krajolik i more, čineći interijer svijetlim i prozračnim.
Zemljište je od mora udaljeno svega 400m i u blizini se nalaze svi potrebni sadržaji. Od centra grada trogira udaljeno je 2 kiliometra i od zračne luke Split svega 9km.
Lokacija
Trogir, Dalmacija obala
Trogir je povijesni grad i luka na jadranskoj obali u Splitsko-dalmatinskoj županiji, Hrvatska. Povijesni grad Trogir smjestio se na otočiću između hrvatskog kopna i otoka Čiova. Nalazi se 27 kilometara zapadno od grada Splita. Od 1997. godine povijesna jezgra Trogira uvrštena je na UNESCO-v popis mjesta svjetske baštine.
Tražiš li nešto drugo?










