





Chorwacja, Dalmacja wybrzeże, Primosten - Dwupokojowe mieszkanie z dużym tarasem i widokiem na morze
ID: 5446/30Podstawowe informacje
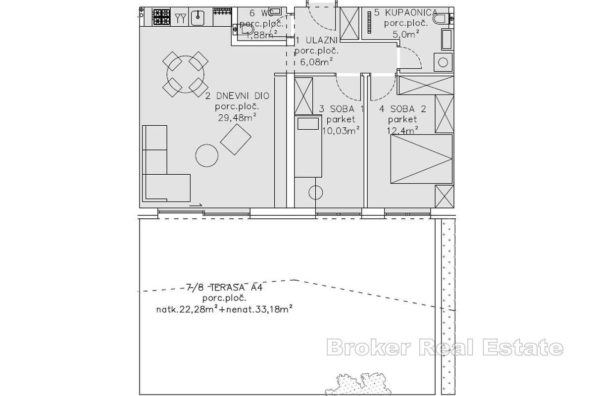
Przestrzeń życiowa:63 m2
Sypialnie:2
Łazienki:2
Odległość morska:500 m
Zalety nieruchomości
- Nowoczesna
- Widok morza
Udogodnienia
- Certyfikat Energetyczny
- Garaż
- Nowy build
O nieruchomości
Na sprzedaż piękne dwupokojowe mieszkanie położone na parterze nowoczesnego budynku. Nieruchomość położona jest w atrakcyjnej lokalizacji, dzięki czemu wszystkie apartamenty oferują wspaniały widok na morze.
Mieszkanie o powierzchni nieco ponad 63 m² składa się z dwóch sypialni, łazienki i oddzielnej toalety oraz przestronnego salonu, który łączy kuchnię, jadalnię i salon. Z obu sypialni, a także z salonu, jest wyjście na częściowo zadaszony, przestronny taras o powierzchni około 20 m².
Do mieszkania przynależy komórka lokatorska oraz miejsce parkingowe w garażu o łącznej powierzchni około 10 m².
W trakcie budowy użyto wysokiej jakości materiałów, a mieszkanie wyposażone jest w rolety antywłamaniowe, moskitiery we wszystkich oknach oraz elektryczne ogrzewanie podłogowe w całej przestrzeni, z wyjątkiem przestrzeni pod meblami.
Nieruchomość ta jest doskonałą inwestycją, idealną pod wynajem turystyczny lub jako komfortowe miejsce na rodzinny wypoczynek.
Lokalizacja
Primosten, Dalmacja wybrzeże
Primošten – wieś i gmina w Chorwacji, w powiecie szybenicko-knińskim. Leży na południu, pomiędzy miastami Szybenik i Trogir, na wybrzeżu Adriatyku. Primošten słynie z ogromnych i pięknych winnic. Największa plaża w Primošten nazywa się Raduča, a jej mniejsza część, Mala Raduča, uznawana jest za jedną z 10 najpiękniejszych plaż w Chorwacji.
Szukasz czegoś innego?










