





Хорватия, Далмация побережье, Primosten - Двухкомнатная квартира с большой террасой и видом на море
ID: 5446/30Основная информация
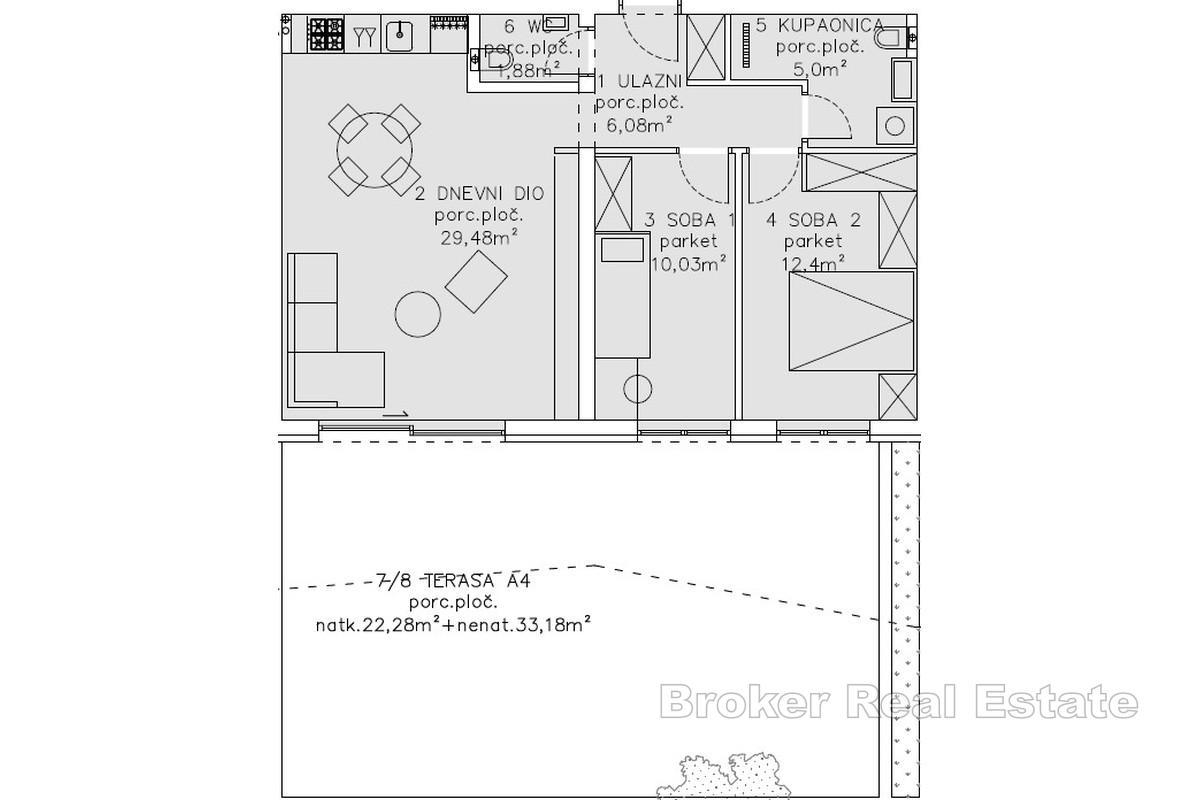
Жилое пространство:63 m2
Спальни:2
Ванные комнаты:2
Расстояние до моря:500 m
Преимущества недвижимости
- Bид на море
- Новостройка
Удобства
- Гараж
- Современная
- Энергетический сертификат
О собственности
Продаётся красивая двухкомнатная квартира, расположенная на первом этаже современного здания. Недвижимость расположена в привлекательном месте, благодаря чему из всех квартир открывается прекрасный вид на море.
Площадь квартиры составляет чуть более 63 м². Она состоит из двух спален, ванной комнаты и отдельного туалета, а также просторной гостиной, которая соединяет кухню, столовую и гостиную. Из обеих спален, как и из гостиной, есть выход на частично крытую просторную террасу площадью около 20 м².
В квартире есть кладовая и одно парковочное место в гараже общей площадью около 10 м².
При строительстве использовались высококачественные материалы. Квартира оборудована автоматическими рольставнями, москитными сетками на всех окнах и электрическим тёплым полом во всем помещении, кроме под мебелью. Данная недвижимость является прекрасной инвестицией, идеально подходит для сдачи в туристическую аренду или как комфортное место для семейного отдыха.
Местоположение
Primosten, Далмация побережье
Примоштен — деревня и муниципалитет в Шибенско-Книнской жупании, Хорватия. Он расположен на юге, между городами Шибеник и Трогир, на побережье Адриатического моря. Примоштен славится своими огромными и красивыми виноградниками. Самый большой пляж Примоштена называется Радуча, а его меньшая часть, Мала Радуча, признана одним из 10 самых красивых пляжей Хорватии.
Вы ищете что-то еще?










