





Hrvatska, Dalmacija obala, Primošten - Dvosoban stan s velikom terasom i pogledom na more
ID: 5446/30Osnovni podaci
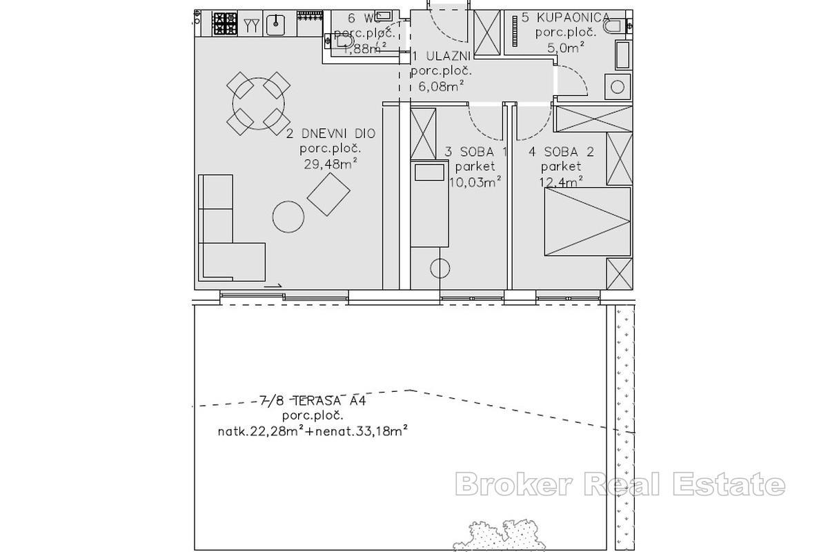
Stambeni prostor:63 m2
Sobe:2
Kupaonice:2
Udaljenost od mora:500 m
Prednosti nekretnine
- Pogled na more
- Novogradnja
Pogodnosti
- Energetski certifikat
- Garaža
- Moderno
O nekretnini
Na prodaju je prekrasan dvosoban stan smješten u prizemlju moderno izgrađene zgrade. Objekt se nalazi na atraktivnoj lokaciji, zahvaljujući kojoj svi stanovi imaju divan pogled na more.
Stan ima nešto više od 63m2 stambene površine, a sastoji se od dvije spavaće sobe, kupaonice i odvojenog WC-a te prostranog dnevnog prostora koji povezuje kuhinju, blagovaonicu i dnevni boravak. Iz obje spavaće sobe, kao i iz dnevnog boravka, pruža se izlaz na djelomično natkrivenu, prostranu terasu površine oko 20m2.
Uz stan su osigurani ostava i jedno garažno parkirno mjesto ukupne od oko 10m2.
Pri izgradnji su korišteni visokokvalitetni materijali, a stan je opremljen roletama na motorni pogon, komaricama na svim prozorima te električnim podnim grijanjem provedenim kroz cijeli prostor, osim ispod namještaja.
Ova nekretnina izvrsna je investicija, idealna za turistički najam ili kao udobno mjesto za obiteljski odmor.
Lokacija
Primošten, Dalmacija obala
Primošten je naselje i općina u Šibensko-kninskoj županiji, Hrvatska. Nalazi se na jugu, između gradova Šibenika i Trogira, na obali Jadranskog mora. Primošten je poznat po svojim ogromnim i prekrasnim vinogradima. Najveća plaža u Primoštenu zove se Raduča, a njen manji dio, Mala Raduča, proglašena je jednom od 10 najljepših plaža u Hrvatskoj.
Tražiš li nešto drugo?










