





Хорватия, Далмация острова, Solta - Полностью меблированная квартира, на продажу
ID: 2014/60Основная информация
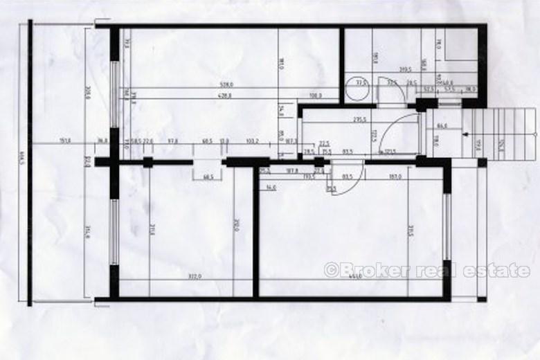
Жилое пространство:54 m2
Спальни:2
Ванные комнаты:1
Этажи:1
Расстояние до моря:200 m
О собственности
Квартира расположена на первом этаже, в центре здания. От моря 200 м.
Он состоит из: 49,32 м2 гостиной с кухней и столовой, двух спален, ванной комнаты и прихожей и соответствующей террасы 12,10 м2, а также лестницей с посадочной высотой 3,54 м2. IU. Общая площадь учета 53,29 м2
Квартира полностью меблирована и недавно оформлена, продается с мебелью или без мебели. Близость к пляжу 200 м, есть парковочное место прямо над квартирой (не входит в стоимость). Квартира характеризуется бокалом сена, множеством солнцезащитных зонтов и просторным балконом для дневного наслаждения.
Местоположение
Solta, Далмация острова
Шолта расположена на архипелаге центральной Далмации, к западу от острова Брач, к югу от Сплита и к востоку от островов Дрвеник. На северо-восточном побережье острова расположены большие заливы Рогач и Нечуям. Главный рыболовный центр – Маслиница, подверженный воздействию только северо-западных ветров, что делает его хорошим укрытием для небольших лодок.
Вы ищете что-то еще?






