Вне рынка

Вне рынка





Хорватия, Далмация острова, Brac - Старый Средиземноморский дом для ремонта, для продажи
ID: 3971/30Цена€130,000
ID: 3971/30
Основная информация
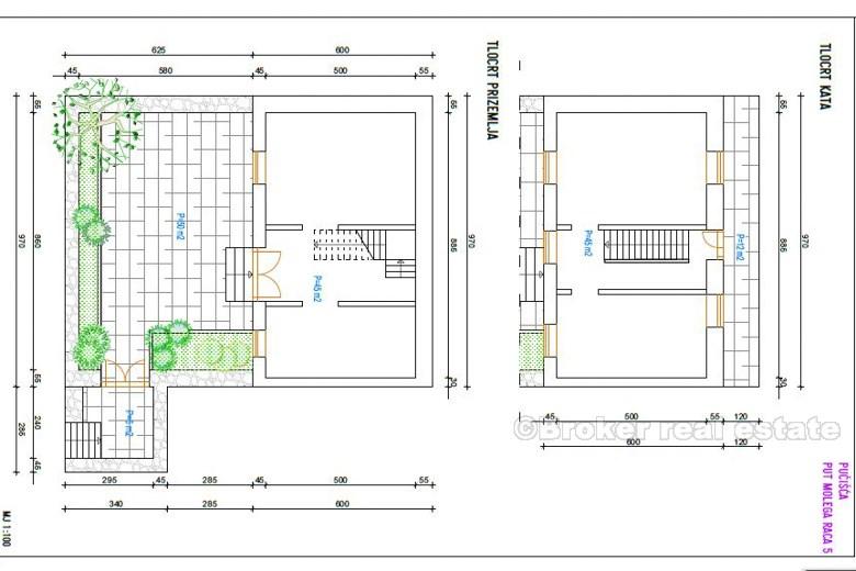
Жилое пространство:100 m2
Сухопутное пространство:50 m2
Этажи:3
Расстояние до моря:60 m
Преимущества недвижимости
- Bид на море
Удобства
- Энергетический сертификат
О собственности
В собственности имеет два этажа плюс чердак, и около 50 м2.Расположение в центре населенного пункта.Дом необитаем, необходимо в полной реконструкции, наружные стены находятся в хорошем состоянии, интерьер и крышу носят. Вариант обновления. Второй ряд от моря.
Местоположение
Brac, Далмация острова
Брач площадью 396 квадратных километров является крупнейшим островом в Далмации и третьим по величине островом в Адриатическом море в целом. Брач имеет длинную и извилистую береговую линию с множеством маленьких и больших заливов. Особенно примечательны естественные гавани Супетар, Сплитска, Пучишча, а также Повля, Сумартин, Милна и Бобовишча.
Вы ищете что-то еще?






