





Хорватия, Далмация острова, Ciovo - Дом с видом на море, на продажу
ID: 2019/60Основная информация
Сухопутное пространство:1374 m2
Спальни:5
Ванные комнаты:5
Этажи:3
Расстояние до моря:100 m
Преимущества недвижимости
- Bид на море
Удобства
- Cтоянка
- Энергетический сертификат
О собственности
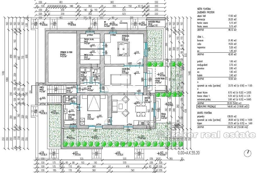
Продается дом с большим садом и разрешением на строительство современной виллы с бассейном. Площадь земельного участка составляет 1374м2.
Недвижимость находится в небольшом месте на острове Чиово. Расположение дома в центре места действительно интересное, оно находится в 100 метрах от пляжа и имеет прекрасный вид на море. Хотя нельзя сказать, что в первом ряду от моря это свойство имеет практически все особенности дома в первом ряду от моря.
Перед ним нет другого дома, у него отличный вид на море, все объекты находятся в непосредственной близости. Для этой собственности действительное разрешение на строительство было получено, и все коммунальные услуги были оплачены.
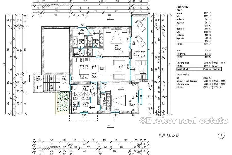
Инвестор может пойти на работу очень быстро. Проект состоит из первого этажа, первого и второго этажей, бассейна, сарая и открытой парковки. На первом этаже площадью 120 м2 предполагается построить зону отдыха, турецкую баню, финскую сауну, туалет, прачечную, гостиную с кухней и одну комнату с ванной комнатой. На первом этаже спроектирована уютная трехкомнатная квартира площадью 113м2. Квартира состоит из двух спален, каждая со своим гардеробом и ванной комнатой, гостиной с кухней и столовой и крытой террасы. На втором этаже спроектирована практически та же квартира, что и на первом этаже только с большими террасами. Наверху, вместо крыши, образная плоская терраса.
Отличная недвижимость в красивом месте с разрешением на строительство и чистой собственностью.
Местоположение
Ciovo, Далмация острова
Чиово расположен в центральной Далмации, защищая город Трогир и залив Каштела. В своей северной части он соединен с материком двумя мостами, один мост находится в старом центре Трогира, а часть Трогира распространилась на остров. Помимо части Трогира, на острове есть несколько деревень: Арбания, Жедно, Округ Горни, Округ Доньи и Слатине.
Вы ищете что-то еще?










