





Хорватия, Далмация острова, Ciovo - Двухэтажный пентхаус с открытым видом на море
ID: 2035/252Основная информация
Жилое пространство:93 m2
Сухопутное пространство:75 m2
Спальни:3
Ванные комнаты:3
Этажи:2
Расстояние до моря:80 m
Преимущества недвижимости
- Bид на море
- Новостройка
- Роскошная
Удобства
- Cтоянка
- Современная
- Энергетический сертификат
О собственности
Продаётся двухэтажный пентхаус с открытым панорамным видом на море, расположенный в холмистой части острова Чиово, обращенной на север. Этот объект недвижимости, расположенный в уникальном месте, предлагает идеальный баланс между городской жизнью и природой. Он окружён новыми жилыми комплексами, обеспечивающими уединение и покой.
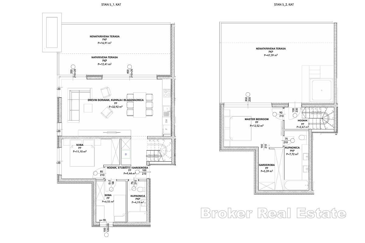
Пентхаус расположен на втором и третьем этажах современного жилого дома. Его главным преимуществом является впечатляющая терраса перед вторым этажом квартиры, с которой открывается беспрепятственный вид на море.
Жилая площадь 92,30 м² была тщательно спроектирована для обеспечения максимального комфорта и функциональности. На первом этаже квартиры находятся прихожая, гардеробная, две спальни, ванная комната и открытая гостиная, гармонично соединённая с крытой и открытой террасой площадью 29,32 м², которая идеально подходит для отдыха. Внутренняя лестница ведет на второй этаж квартиры, где расположены прихожая, главная спальня с гардеробной и ванная комната. Из спальни есть выход на открытую террасу площадью 47,39 м² с гидромассажной ванной, которая предлагает достаточно места для создания интерьера и обустройства по вашему вкусу.
При строительстве и отделке использовались материалы высочайшего качества: высококачественные напольные покрытия и сантехника, столярные изделия с электрическими лифтами, бронированные двери… Комфорт также обеспечивается системой отопления и охлаждения с помощью кондиционера в каждой комнате и подогрева пола. За зданием имеется открытое парковочное место.
Этот эксклюзивный пентхаус — редкая возможность для тех, кто ищет высококачественное жильё в тихом ме
Местоположение
Ciovo, Далмация острова
Чиово расположен в центральной Далмации, защищая город Трогир и залив Каштела. В своей северной части он соединен с материком двумя мостами, один мост находится в старом центре Трогира, а часть Трогира распространилась на остров. Помимо части Трогира, на острове есть несколько деревень: Арбания, Жедно, Округ Горни, Округ Доньи и Слатине.
Вы ищете что-то еще?







