





Хорватия, Далмация острова, Ciovo - Роскошный двухуровневый пентхаус недалеко от моря
ID: 2035/253Основная информация
Жилое пространство:102 m2
Сухопутное пространство:50 m2
Спальни:3
Ванные комнаты:3
Этажи:2
Расстояние до моря:80 m
Преимущества недвижимости
- Bид на море
- Новостройка
- Роскошная
Удобства
- Cтоянка
- Современная
- Энергетический сертификат
О собственности
Продаётся великолепный двухуровневый пентхаус, расположенный в исключительном месте, недалеко от моря, на солнечном острове Чиово. Этот объект недвижимости находится всего в нескольких минутах ходьбы от всех удобств, которые делают этот остров невероятно привлекательным местом для жизни и отдыха. Пентхаус расположен на втором и третьем этажах небольшого нового здания с современным дизайном и ориентирован на северо-восток, что обеспечивает обилие естественного света и прекрасный вид на море.
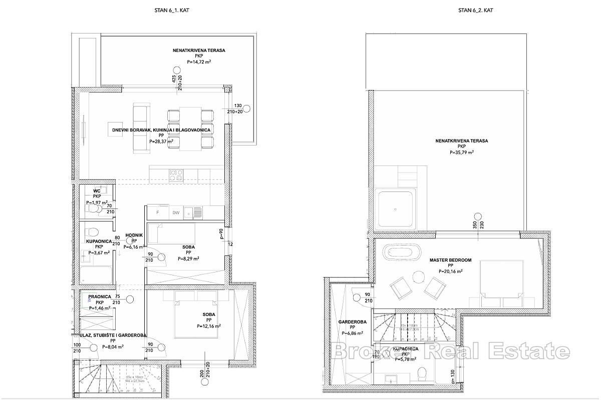
Квартира площадью 102,92 м² состоит из двух этажей. На первом этаже находятся прихожая, гардеробная, коридор, прачечная, туалет, две спальни и ванная комната, а также кухня со столовой и гостиной с выходом на открытую террасу площадью 14,72 м². Внутренняя лестница ведёт на второй этаж квартиры, где расположены главная спальня с гардеробной и ванной комнатой. На этом этаже также есть выход на открытую террасу площадью 35,79 м² с массажной ванной.
Главным преимуществом этой недвижимости являются просторные террасы, расположенные перед каждым этажом, с которых открывается захватывающий панорамный вид на море — идеальное место для отдыха на свежем воздухе. Здание построено из высококачественных материалов, а охлаждение и отопление обеспечиваются системой кондиционирования и подогрева полов. К квартире также прилагается открытое парковочное место, расположенное за зданием.
Этот пентхаус представляет собой идеальное сочетание элегантности, функциональности и современного комфорта и идеально подходит как для личного проживания, так и для сдачи в аренду туристам класса люкс.
Местоположение
Ciovo, Далмация острова
Чиово расположен в центральной Далмации, защищая город Трогир и залив Каштела. В своей северной части он соединен с материком двумя мостами, один мост находится в старом центре Трогира, а часть Трогира распространилась на остров. Помимо части Трогира, на острове есть несколько деревень: Арбания, Жедно, Округ Горни, Округ Доньи и Слатине.
Вы ищете что-то еще?







