





Хорватия, Далмация побережье, Dubrovnik - Привлекательная вилла с бассейном, первая линия от моря
ID: 2026/92Основная информация
Жилое пространство:370 m2
Сухопутное пространство:3000 m2
Спальни:4
Ванные комнаты:4
Этажи:2
Расстояние до моря:30 m
У моря
Преимущества недвижимости
- Bид на море
- Бассейн
- Роскошная
Удобства
- Cтоянка
- Современная
- Энергетический сертификат
О собственности
Продается современная двухквартирная вилла общей площадью 370 м2 недалеко от Дубровника, построенная на участке земли 3000 м2.
Вилла состоит из двух этажей и была построена в 2018 году.
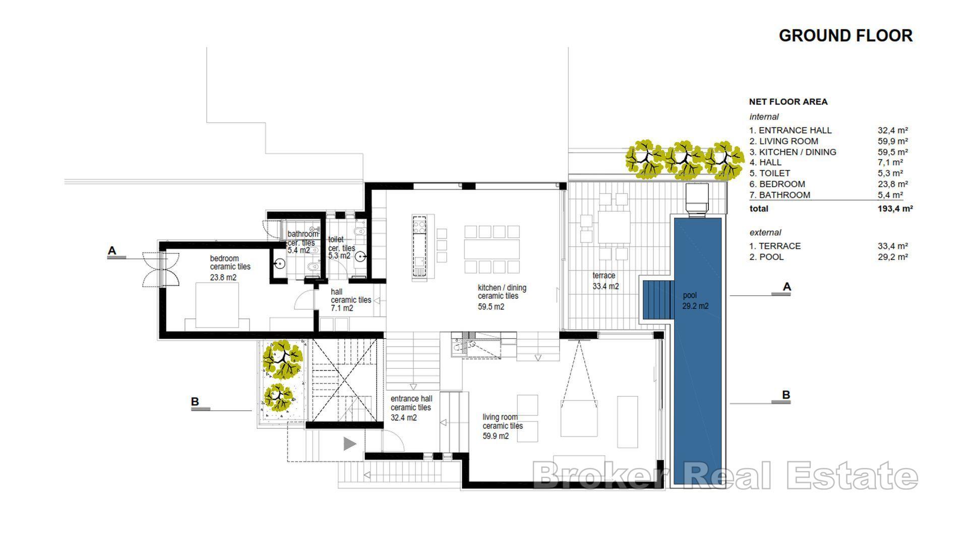
На первом этаже общей жилой площадью 194 м2 расположены туалет, спальня с ванной комнатой, кухня со столовой и просторная гостиная с выходом на террасу с великолепным открытым видом на море.
На просторной террасе 33 м2 с садовой мебелью расположен бассейн 29 м2, из которого каждый день можно наслаждаться безупречным видом на море.
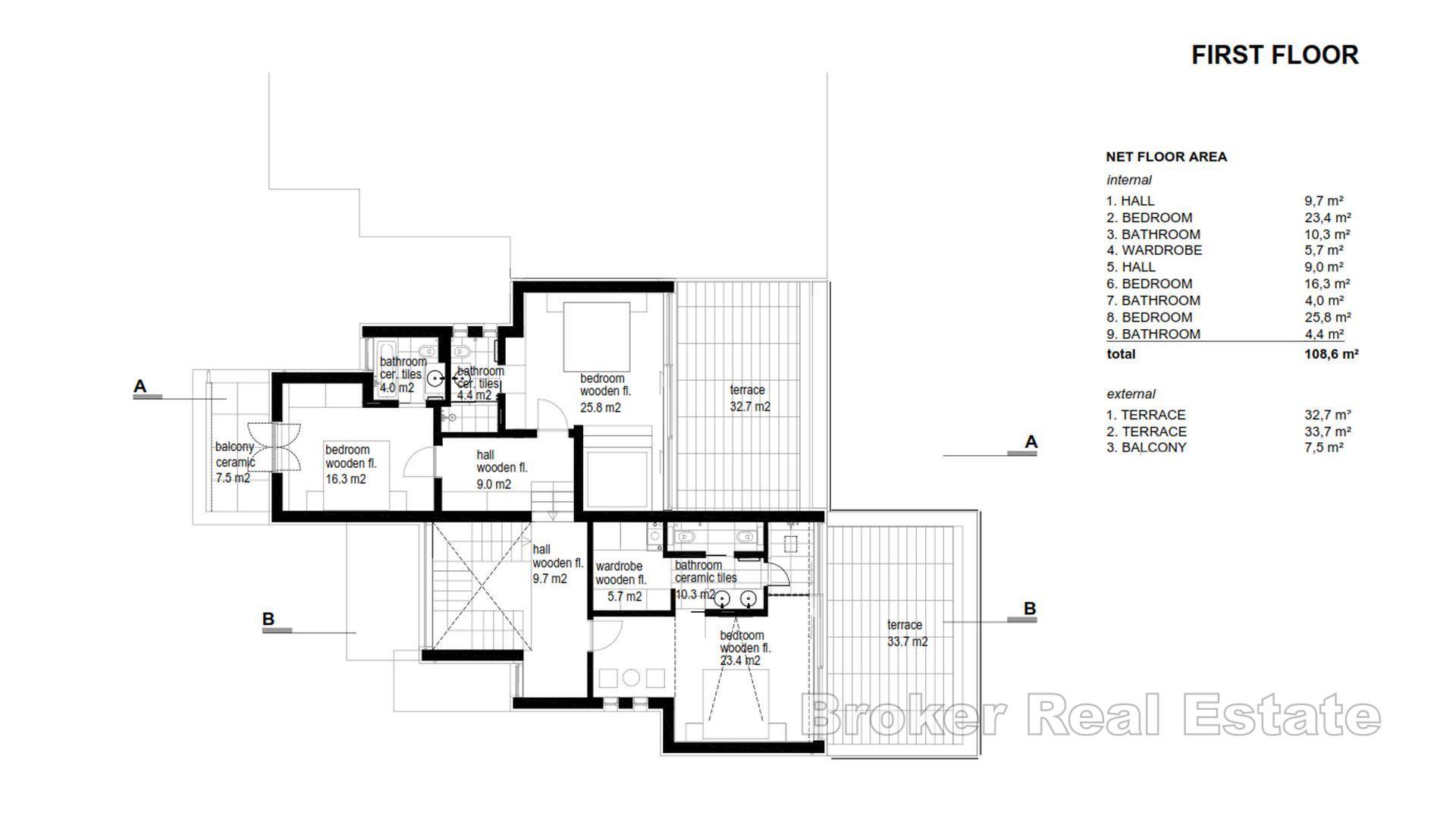
На втором этаже общей жилой площадью 109 м2 расположены три спальни, каждая со своим санузлом.
Две спальни имеют выход на террасу площадью ок. 33 м2.
Дизайн виллы таков, что почти из каждой комнаты открывается неповторимый панорамный вид на море.
Главной характеристикой этой виллы является уединение, которое она обеспечивает, тихое и спокойное место, а сама недвижимость окружена зеленью.
Независимо от того, используется ли она для отдыха, сдачи в аренду или повседневной жизни, эта вилла предлагает беспрецедентную роскошь.
Расстояние от центра Дубровника составляет 7 км по воздуху, а от аэропорта Дубровника 23 км по воздуху.
Это исключительная возможность на рынке, которую стоит рассмотреть.
Учитывая, что недвижимость является двухквартирной, вы можете найти другую недвижимость под номером ссылки 2026/91.
Местоположение
Dubrovnik, Далмация побережье
Дубровник — город в южной Далмации, Хорватия, на берегу Адриатического моря. Это одно из самых известных туристических направлений Средиземноморья, морской порт и центр Дубровницко-Неретванской жупании. В 1979 году город Дубровник был внесен в список объектов всемирного наследия ЮНЕСКО в знак признания его выдающейся средневековой архитектуры и укрепленного старого города.
Вы ищете что-то еще?










