





Хорватия, Далмация побережье, Split город, Gripe - Коммерческое помещение в аренду - в престижном месте в Сплите
ID: 5371/30Основная информация
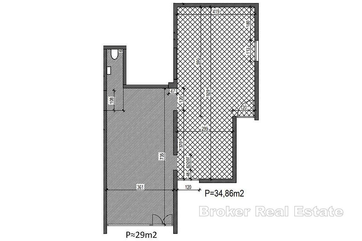
Жилое пространство:64 m2
Спальни:2
Ванные комнаты:1
Этажи:1
Расстояние до моря:1000 m
Удобства
- Энергетический сертификат
О собственности
Сдается в аренду привлекательное офисное помещение площадью 64 м², расположенное в отличном месте с оживленным движением в Сплите. Помещение расположено на первом этаже здания, что обеспечивает отличную видимость и доступность. Помещение вскоре будет отремонтировано и разделено на 3 комнаты, одна из которых — ванная комната, а две другие могут быть декорированы в соответствии с пожеланиями арендатора.
Благодаря функциональной планировке и нейтральному интерьеру помещение идеально подходит для различных видов деятельности — от офисов, салонов красоты или парикмахерских, выставочных залов, студий, врачебных кабинетов до розничной торговли.
Это пространство предлагает идеальное сочетание местоположения, доступности и функциональности и представляет собой прекрасную возможность для развития или расширения бизнеса благодаря близости к общественному транспорту, школам, магазинам и другим удобствам.
Местоположение
Split город, Далмация побережье
Сплит — второй по величине город Хорватии после столицы Загреба, крупнейший город Далмации и крупнейший город хорватского побережья. Он расположен на восточном берегу Адриатического моря и занимает центральный полуостров и его окрестности. Внутрирегиональный транспортный узел и популярное туристическое направление, город связан с Адриатическими островами и Апеннинским полуостровом.
Вы ищете что-то еще?







