





Kroatien, Dalmatiens öar, Ciovo - Tvårumslägenhet med rymlig trädgård
ID: 2035/250Basinformation
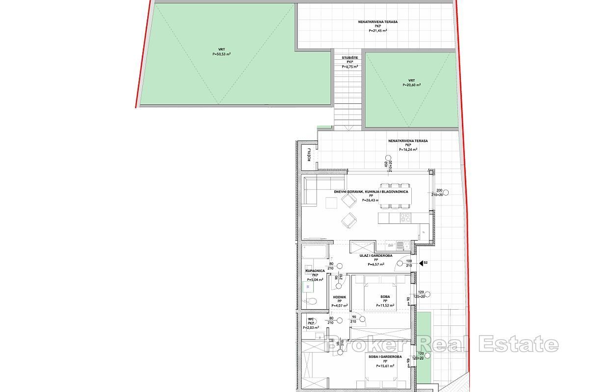
Boendeyta:71 m2
Markutrymme:115 m2
Sovrum:2
Badrum:2
Golv:1
Avstånd till havet:80 m
Fastighetsfördelar
- Havsutsikt
- Lyxigt
- Nyproduktion
Bekvämligheter
- Bästa erbjudande
- Energicertifikat
- Moderna
Om fastigheten
En modern lägenhet i en ny byggnad med trädgård och havsutsikt belägen på Čiovo. Den ligger på bottenvåningen i ett bostadshus omgivet av liknande nybyggda byggnader som skapar ett snyggt och modernt område, perfekt för semester eller boende året runt. Den är nordostorienterad, vilket gör den idealiskt upplyst under de varma sommarmånaderna.
Lägenheten har 71,27 m² och består av en entré och garderob, hall, modernt badrum, gästtoalett, två sovrum, varav ett har en klädkammare, samt ett kök med matplats och ett vardagsrum som öppnar upp mot en öppen terrass med havsutsikt. En utvändig trappa leder till en ytterligare terrass vid den nedre kaskaden, och lägenheten har också två stora trädgårdar som är idealiska för att utrusta ett sommarkök, loungemöbler, grill eller till och med en bubbelpool, vilket skapar den perfekta platsen för utomhussällskap. Den totala ytan på utomhusytan är 115,57 m².
Lägenheten kommer att vara luftkonditionerad, vilket möjliggör effektiv kylning och uppvärmning av utrymmet året runt, och utrustad med golvvärme, vilket ger extra komfort under de kallare månaderna. Lägenheten har också en utomhusparkeringsplats, som ingår i priset, vilket är extremt praktiskt under sommarsäsongen då parkering ofta är begränsad.
Fastigheten är utmärkt för turistuthyrning på grund av dess närhet till alla bekvämligheter på ön Čiovo. I omedelbar närhet finns butiker, restauranger, stränder och promenadstråk, medan Splits flygplats bara ligger 13 km bort, vilket ytterligare bidrar till fastighetens attraktivitet som semester- eller uthyrningsinvestering.
Plats
Ciovo, Dalmatiens öar
Čiovo ligger i centrala Dalmatien och skyddar staden Trogir och Kaštelabukten. På sin norra del är den ansluten till fastlandet med två broar, en bro är i den gamla stadskärnan i Trogir, och en del av Trogir breder ut sig på ön. Förutom delen av Trogir finns det flera byar på ön: Arbanija, Žedno, Okrug Gornji, Okrug Donji och Slatine.
Letar du efter något annat?









