





Hrvatska, Dalmacija otoci, Čiovo - Dvosoban stan s prostranim vrtom
ID: 2035/250Osnovni podaci
Stambeni prostor:71 m2
Zemljište:115 m2
Sobe:2
Kupaonice:2
Katovi:1
Udaljenost od mora:80 m
Prednosti nekretnine
- Pogled na more
- Novogradnja
- Luksuzno
Pogodnosti
- Energetski certifikat
- Moderno
- Najbolja ponuda
O nekretnini
Moderan apartman u novogradnji vrtom i pogledom na more smješten na Čiovu. Nalazi se na prizemlju stambene zgrade okružene sličnim novoizgrađenim objektima koji čine uredno i moderno susjedstvo, idealno za odmor ili život tijekom cijele godine. Sjeveroistočne je orijentacije što ga čini idealno osvijetljenim tijekom vrućih ljetnih mjeseci.
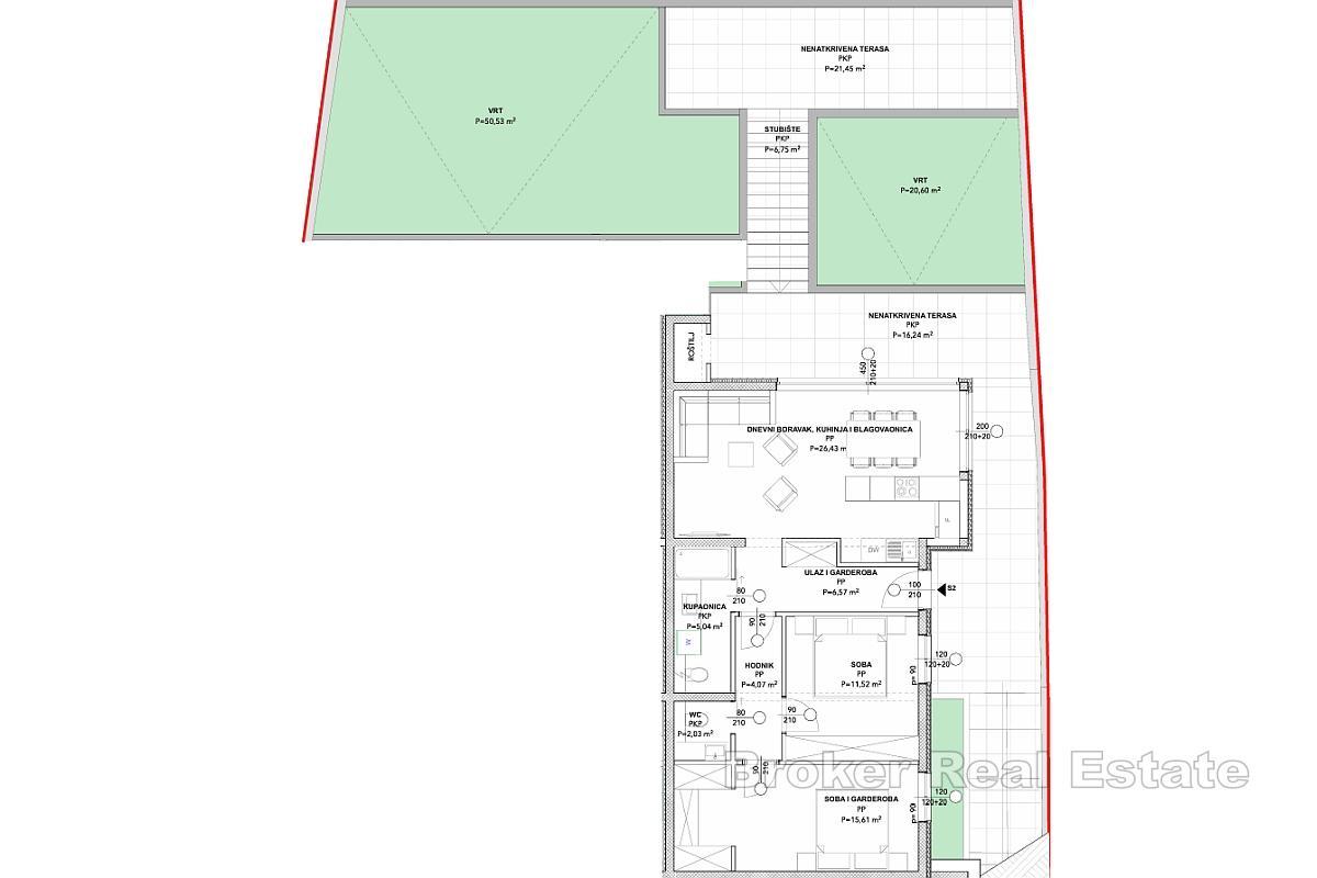
Stan ima 71,27 m² te se sastoji od ulaza i garderobe, hodnika, moderno uređene kupaonice, toaleta za goste, dvije spavaće sobe od kojih jedna ima walk-in ormar te kuhinje s blagovaonicom i dnevnog boravka iz kojega se pruža izlaz na nenatkrivenu terasu s pogledom na more. Vanjsko stubište vodi na dodatnu terasu na donjoj kaskadi, a stanu pripadaju i dva velika vrta idealna za opremanje ljetnom kuhinjom, lounge sjedištem, roštiljem ili čak masažnom kadom, stvarajući savršeno mjesto za druženje na otvorenom. Ukupna površina vanjskog prostora je 115,57 m².
Stan će biti klimatiziran što omogućuje učinkovito hlađenje i grijanje prostora tijekom cijele godine te opremljen podnim grijanjem koje osigurava dodatni komfor u hladnijim mjesecima. Stanu pripada i jedno vanjsko parkirno mjesto, koje je uključeno u cijenu, što je izuzetno praktično tijekom ljetne sezone kada je parking često ograničen.
Nekretnina je izvrsna za turističko iznajmljivanje zbog blizine svih sadržaja na otoku Čiovu. U neposrednoj blizini nalaze se trgovine, restorani, plaže i šetnice, dok je zračna luka Split udaljena svega 13 km, što dodatno doprinosi atraktivnosti ove nekretnine kao investicije za odmor ili najam.
Lokacija
Čiovo, Dalmacija otoci
Čiovo se nalazi u srednjoj Dalmaciji, štiteći grad Trogir i Kaštelanski zaljev. Svojim sjevernim dijelom povezan je s kopnom s dva mosta, jedan most je u staroj jezgri Trogira, a zapravo se dio Trogira prostire na otoku. Osim dijela Trogira, na otoku se nalazi nekoliko naselja: Arbanija, Žedno, Okrug Gornji, Okrug Donji i Slatine.
Tražiš li nešto drugo?









