





Croazia, Isole Dalmazia, Ciovo - Appartamento con due camere da letto e ampio giardino
ID: 2035/250Informazioni di base
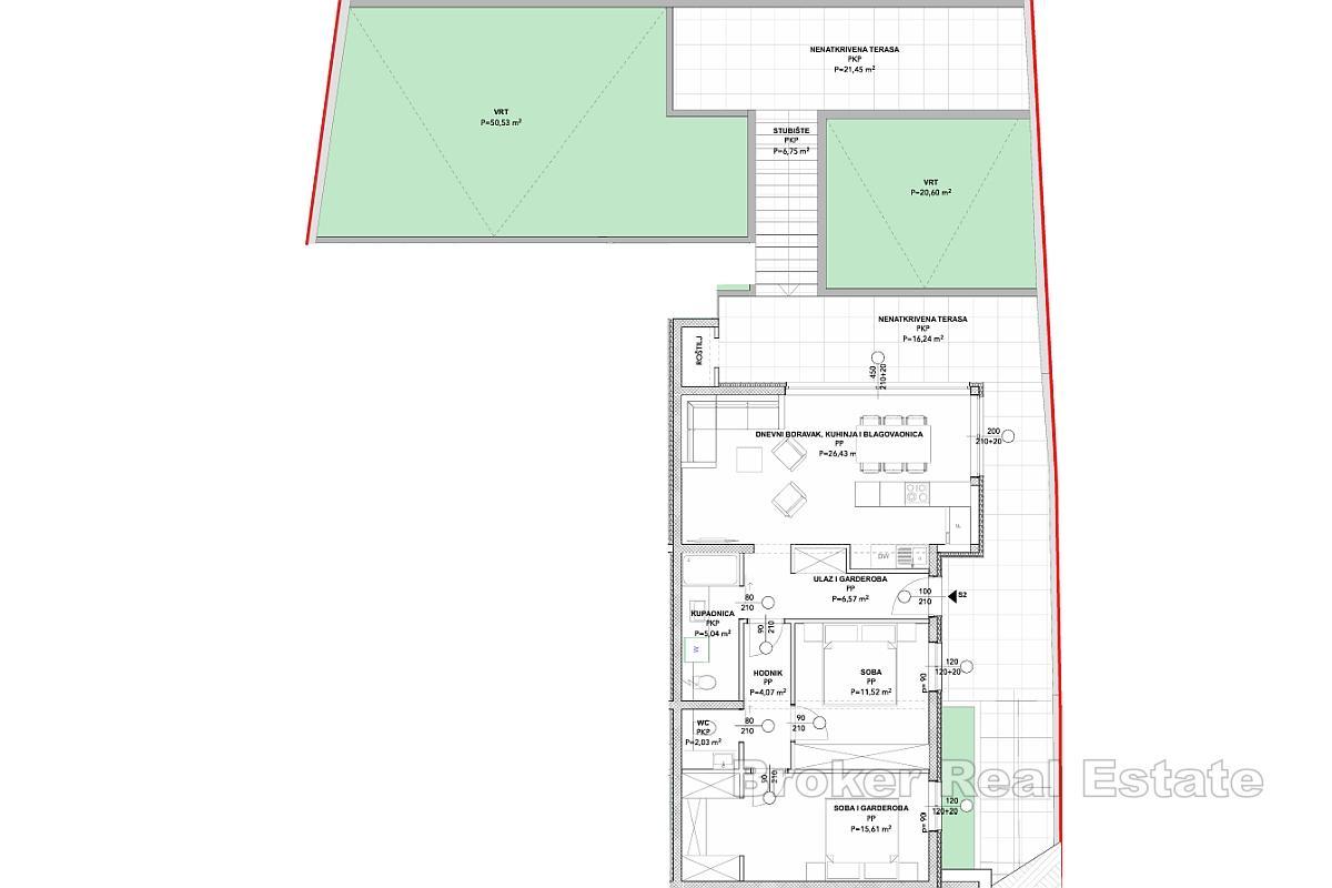
Spazio vitale:71 m2
Spazio terrestre:115 m2
Camere da letto:2
Bagni:2
Piani:1
Distanza dal mare:80 m
Vantaggi della proprietà
- Vista sul mare
- Nuova costruzione
- Di lusso
Dotazioni
- Certificato energetico
- Moderna
- Migliore offerta
Sulla proprietà
Un moderno appartamento in un nuovo edificio con giardino e vista mare, situato a Čiovo. Si trova al piano terra di un edificio residenziale circondato da edifici simili di nuova costruzione che creano un quartiere ordinato e moderno, ideale per le vacanze o per vivere tutto l’anno. È orientato a nord-est, il che lo rende perfettamente illuminato durante i caldi mesi estivi.
L’appartamento ha una superficie di 71,27 m² ed è composto da ingresso e guardaroba, disimpegno, bagno moderno, bagno per gli ospiti, due camere da letto, una delle quali con cabina armadio, e una cucina con zona pranzo e un soggiorno che si apre su una terrazza scoperta con vista mare. Una scala esterna conduce a un’ulteriore terrazza sul lato inferiore della cascata, e l’appartamento dispone anche di due ampi giardini ideali per attrezzare una cucina estiva, un salotto, un barbecue o persino una vasca idromassaggio, creando il luogo perfetto per socializzare all’aperto. La superficie totale dello spazio esterno è di 115,57 m².
L’appartamento sarà dotato di aria condizionata, che consentirà un raffreddamento e un riscaldamento efficienti durante tutto l’anno, e di riscaldamento a pavimento, che offrirà ulteriore comfort nei mesi più freddi. L’appartamento dispone inoltre di un posto auto esterno, incluso nel prezzo, estremamente pratico durante la stagione estiva, quando i parcheggi sono spesso limitati.
L’immobile è ideale per affitti turistici grazie alla sua vicinanza a tutti i servizi dell’isola di Čiovo. Nelle immediate vicinanze si trovano negozi, ristoranti, spiagge e lungomare, mentre l’aeroporto di Spalato dista solo 13 km, il che contribuisce ulteriormente all’attrattiva di questo immobile come investimento per le vacanze o per l’affitto.
Posizione
Ciovo, Isole Dalmazia
Čiovo si trova nella Dalmazia centrale, proteggendo la città di Trogir e il golfo di Kaštela. Nella parte settentrionale è collegata alla terraferma da due ponti, un ponte si trova nel centro storico di Trogir, e parte di Trogir si estende sull'isola. Oltre alla parte di Trogir, sull'isola ci sono diversi villaggi: Arbanija, Žedno, Okrug Gornji, Okrug Donji e Slatine.
Stai cercando qualcos'altro?









