





Хорватия, Далмация острова, Ciovo - Двухкомнатная квартира с просторным садом
ID: 2035/250Основная информация
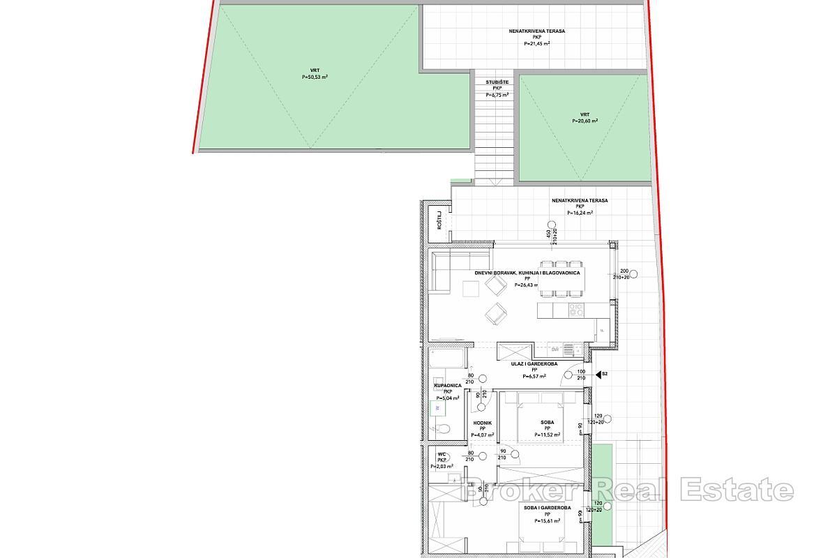
Жилое пространство:71 m2
Сухопутное пространство:115 m2
Спальни:2
Ванные комнаты:2
Этажи:1
Расстояние до моря:80 m
Преимущества недвижимости
- Bид на море
- Новостройка
- Роскошная
Удобства
- Лучшее предложение
- Современная
- Энергетический сертификат
О собственности
Современная квартира в новом доме с садом и видом на море, расположенном на острове Чиово. Квартира расположена на первом этаже жилого дома, окруженного такими же новыми зданиями, которые создают аккуратный и современный район, идеально подходящий для отдыха или проживания круглый год. Квартира ориентирована на северо-восток, что обеспечивает прекрасное освещение в жаркие летние месяцы.
Площадь квартиры составляет 71,27 м². Она состоит из прихожей с гардеробной, коридора, современной ванной комнаты, гостевого туалета, двух спален, одна из которых с гардеробной, кухни с обеденной зоной и гостиной, выходящей на открытую террасу с видом на море. Внешняя лестница ведет на дополнительную террасу на нижнем каскаде. Кроме того, к квартире прилегают два больших сада, идеально подходящих для обустройства летней кухни, зоны отдыха, барбекю или даже джакузи, что создает идеальное место для отдыха на свежем воздухе. Общая площадь открытого пространства составляет 115,57 м².
В квартире будет установлен кондиционер, обеспечивающий эффективное охлаждение и отопление помещения круглый год, а также система подогрева пола, обеспечивающая дополнительный комфорт в холодные месяцы. В стоимость квартиры включено одно парковочное место на открытом воздухе, что особенно удобно в летний сезон, когда парковочных мест зачастую мало.
Недвижимость отлично подходит для туристической аренды благодаря близости ко всем удобствам острова Чиово. В непосредственной близости находятся магазины, рестораны, пляжи и набережные, а аэропорт Сплита находится всего в 13 км, что делает эту недвижимость привлекательной для инвестиций в отпуск или сдачу в аренду.
Местоположение
Ciovo, Далмация острова
Чиово расположен в центральной Далмации, защищая город Трогир и залив Каштела. В своей северной части он соединен с материком двумя мостами, один мост находится в старом центре Трогира, а часть Трогира распространилась на остров. Помимо части Трогира, на острове есть несколько деревень: Арбания, Жедно, Округ Горни, Округ Доньи и Слатине.
Вы ищете что-то еще?









