





Kroatien, Dalmatien Inseln, Ciovo - Zwei-Zimmer-Wohnung mit großem Garten
ID: 2035/250Grundinformation
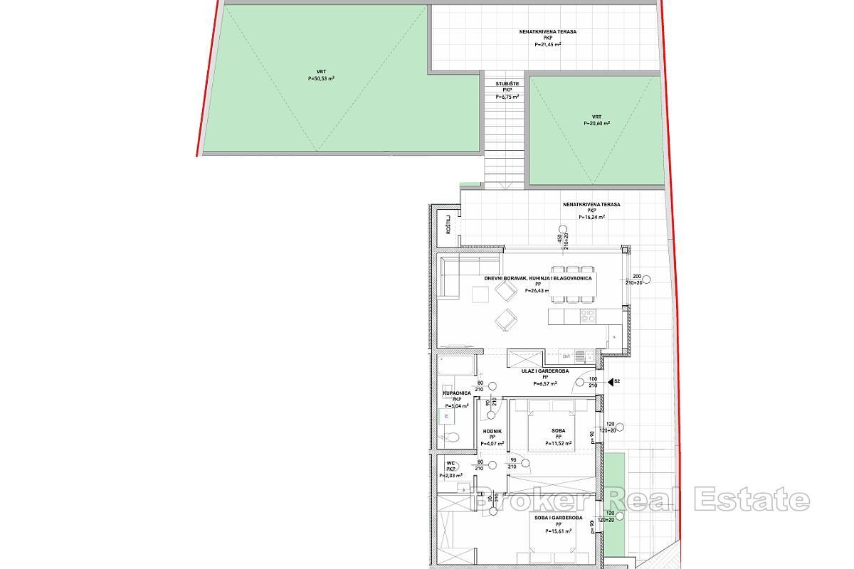
Wohnfläche:71 m2
Grundstücksgrösse:115 m2
Schlafzimmer:2
Badezimmer:2
Etagen:1
Meeresentfernung:80 m
Immobilienvorteile
- Luxus
- Meerblick
- Neubau
Annehmlichkeiten
- Bestes Angebot
- Energiezertifikat
- Modern
Über die Immobilie
Eine moderne Wohnung in einem Neubau mit Garten und Meerblick auf Čiovo. Sie befindet sich im Erdgeschoss eines Wohngebäudes, umgeben von ähnlichen Neubauten, die eine gepflegte und moderne Nachbarschaft bilden – ideal für Urlaub oder ganzjähriges Wohnen. Die Nordostausrichtung sorgt für optimale Beleuchtung in den heißen Sommermonaten.
Die Wohnung hat eine Wohnfläche von 71,27 m² und besteht aus einem Eingangsbereich mit Garderobe, Flur, modernem Bad, Gäste-WC, zwei Schlafzimmern, eines davon mit begehbarem Kleiderschrank, einer Küche mit Essbereich und einem Wohnzimmer mit Zugang zu einer offenen Terrasse mit Meerblick. Eine Außentreppe führt zu einer weiteren Terrasse am unteren Kaskadenrand. Zur Wohnung gehören außerdem zwei große Gärten, die sich ideal für eine Sommerküche, eine Sitzecke, einen Grill oder sogar einen Whirlpool eignen und so den perfekten Ort für geselliges Beisammensein im Freien schaffen. Die Gesamtfläche des Außenbereichs beträgt 115,57 m².
Die Wohnung ist klimatisiert und ermöglicht so ganzjährig eine effiziente Kühlung und Heizung. Die Fußbodenheizung sorgt in den kälteren Monaten für zusätzlichen Komfort. Ein im Preis inbegriffener Außenstellplatz ist im Sommer, wenn Parkplätze oft knapp sind, besonders praktisch.
Die Immobilie eignet sich aufgrund ihrer Nähe zu allen Annehmlichkeiten der Insel Čiovo hervorragend für die Vermietung. In unmittelbarer Nähe befinden sich Geschäfte, Restaurants, Strände und Promenaden. Der Flughafen Split ist nur 13 km entfernt, was die Attraktivität dieser Immobilie als Ferien- oder Mietinvestition weiter steigert.
Standort
Ciovo, Dalmatien Inseln
Čiovo liegt in Mitteldalmatien und schützt die Stadt Trogir und den Golf von Kaštela. Im nördlichen Teil ist sie über zwei Brücken mit dem Festland verbunden, eine Brücke befindet sich im alten Zentrum von Trogir und ein Teil von Trogir erstreckt sich auf die Insel. Außer dem Teil von Trogir gibt es auf der Insel mehrere Dörfer: Arbanija, Žedno, Okrug Gornji, Okrug Donji und Slatine.
Suchen Sie etwas anderes?









