





Chorvatsko, Dalmátské pobřeží, Split město - Kancelářské prostory k pronájmu
ID: 4549/30Základní informace
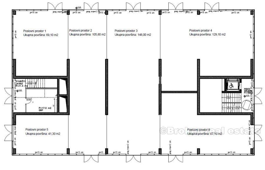
Obytný prostor:322 m2
Ložnice:3
Koupelny:8
O nemovitosti
Pronájem kancelářských prostor v přízemí na polském pozemku o rozloze 323 m2 (na půdorysu: PP PP 1 + 2 + PP3) u KBC Firule. Areál se skládá ze 6 podlaží (tři podzemní, které slouží jako garáže a skladovací prostory a tři nad hlavami slouží jako kancelářské prostory). Všechny bytové jednotky jsou plně zařízené, funkční a pro všechna samostatná budova mají povolení k užívání. Možnost pronájmu více parkovacích míst. Místnost je orientována: sever-jihozápad. Celé sklo, k dispozici od 01. 01. 2016. Měsíční nájemné je 17 EUR / m2 + DPH. Cena jednoho parkovacího místa je 75 EUR + DPH, garáž 150 + DPH za měsíc.
Umístění
Split město, Dalmátské pobřeží
Split je po hlavním městě Záhřebu druhé největší město Chorvatska, největší město v Dalmácii a největší město na chorvatském pobřeží. Leží na východním pobřeží Jaderského moře a rozkládá se na centrálním poloostrově a jeho okolí. Vnitroregionální dopravní uzel a oblíbená turistická destinace, město je spojeno s jadranskými ostrovy a Apeninským poloostrovem.
Hledáte něco jiného?







