





Croazia, Isole Dalmazia, Hvar - Casa sul terreno edificabile con vista sul mare
ID: 4595/30Informazioni di base
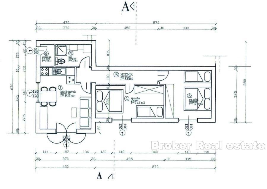
Spazio vitale:145 m2
Spazio terrestre:1227 m2
Camere da letto:4
Bagni:3
Piani:2
Distanza dal mare:200 m
Sulla proprietà
Casa indipendente su un terreno attraente con vista mare situato in una tranquilla baia sul lato sud dell’isola di Hvar. La casa è incompiuta con permesso di posizione e si trova in una pineta, ambiente intimo, ideale per il relax. 200 metri dal mare. Al piano terra si trova un appartamento climatizzato di 30 m2. Primo piano incompiuto di 115 m2 con una grande terrazza, 3 camere da letto, una cucina e un ampio soggiorno con vista mare, bagno e toilette. Acqua ed elettricità sono sul posto, fossa settica e la strada di accesso alla casa. La proprietà è 1/1. C’è una possibilità per l’adattamento del piano e mansarda con 6 appartamenti. Il terreno è ideale per la costruzione di una villa con piscina o 2 ville. Possibile acquistare ulteriori 1000m2 di terreno vicino alla casa.
Posizione
Hvar, Isole Dalmazia
Hvar è un'isola croata nel mare Adriatico, situata al largo della costa dalmata, situata tra le isole di Brač, Vis e Korčula. Le sue colline sono ricoperte di pinete, con vigneti, uliveti, frutteti e campi di lavanda nelle zone agricole. Il clima è caratterizzato da inverni miti ed estati calde con molte ore di sole.
Proprietà simili
Stai cercando qualcos'altro?







