





Kroatia, Dalmatia øyene, Hvar - Hus på byggegrend med havutsikt
ID: 4595/30Grunnleggende informasjon
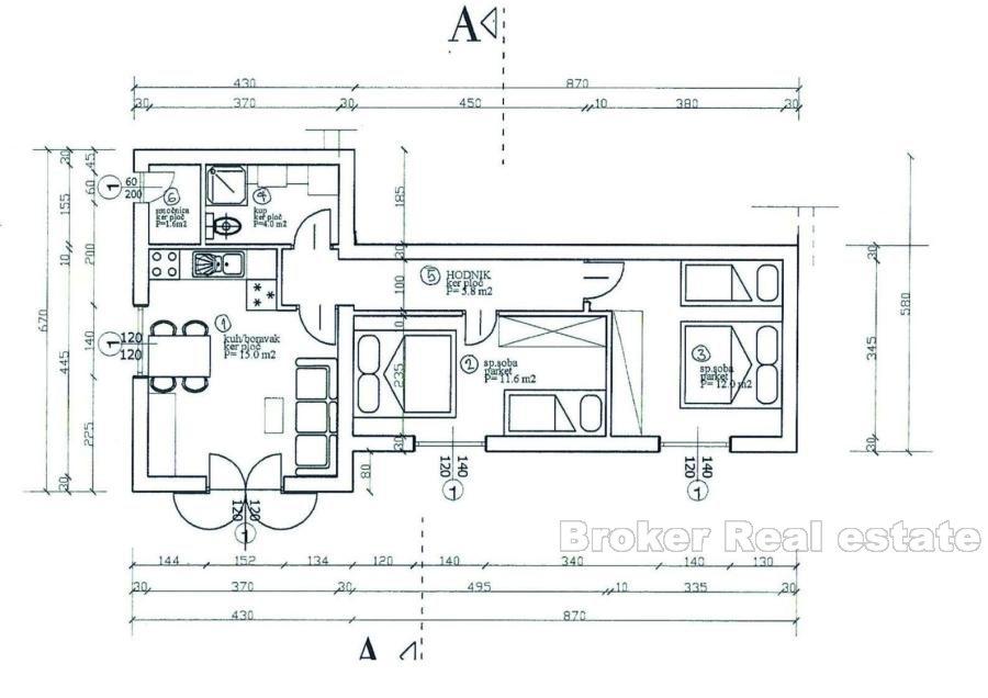
Leveplass:145 m2
Land plass:1227 m2
Soverom:4
Bad:3
Etasjer:2
Sjøavstand:200 m
Om eiendommen
Frittliggende hus på et attraktivt land med havutsikt som ligger i en rolig bukt på sørsiden av Hvar-øya. Huset er uferdig med stedstillatelse og ligger i en furuskog, intimt miljø, ideelt for avslapning. 200m fra sjøen. I første etasje er en aircondition leilighet på 30 m2. Første etasje uferdige 115 m2 med stor terrasse, 3 soverom, kjøkken og stor stue med havutsikt, bad og toalett. Vann og strøm er på stedet, septiktank og tilgangsveien til huset. Eierskap er 1/1. Det er mulighet for tilpasning av gulv og loft med 6 leiligheter. Landet er ideelt for å bygge en villa med basseng eller 2 villaer. Mulig å kjøpe ytterligere 1000m2 tomt ved siden av huset.
Lokasjon
Hvar, Dalmatia øyene
Hvar er en kroatisk øy i Adriaterhavet, som ligger utenfor den dalmatiske kysten, som ligger mellom øyene Brač, Vis og Korčula. Åssidene er dekket av furuskog, med vingårder, olivenlunder, frukthager og lavendelfelt i jordbruksområdene. Klimaet er preget av milde vintre, og varme somre med mange soltimer.
Lignende eiendommer
Leter du etter noe annet?







