





Croatie, Iles de Dalmatie, Hvar - Maison sur un terrain à bâtir avec vue sur la mer
ID: 4595/30Informations de base
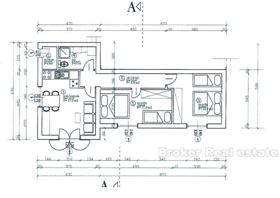
Espace vital:145 m2
Espace terrestre:1227 m2
Chambres:4
Salles de bain:3
Planchers:2
Distance de la mer:200 m
À propos de la propriété
Maison individuelle sur un terrain attrayant avec vue sur la mer située dans une baie tranquille sur le côté sud de l’île de Hvar. La maison est inachevée avec l’autorisation de localisation et est situé dans une forêt de pins, environnement intime, idéal pour la détente. 200m de la mer. Au rez-de-chaussée se trouve un appartement climatisé de 30 m2. Premier étage inachevé 115 m2 avec une grande terrasse, 3 chambres, une cuisine et un grand salon avec vue sur la mer, salle de bains et WC. L’eau et l’électricité sont sur le site, la fosse septique, et la route d’accès à la maison. La propriété est 1/1. Il y a une possibilité d’adaptation de l’étage et du grenier avec 6 appartements. Le terrain est idéal pour construire une villa avec piscine ou 2 villas. Possibilité d’acheter 1000m2 de terrain supplémentaire à côté de la maison.
Emplacement
Hvar, Iles de Dalmatie
Hvar est une île croate de la mer Adriatique, située au large de la côte dalmate, entre les îles de Brač, Vis et Korčula. Ses coteaux sont couverts de forêts de pins, avec des vignes, des oliviers, des vergers fruitiers et des champs de lavande dans les zones agricoles. Le climat est caractérisé par des hivers doux et des étés chauds avec de nombreuses heures d'ensoleillement.
Vous cherchez autre chose?







