





Kroatien, Dalmatien Inseln, Hvar - Haus auf Bauland mit Meerblick
ID: 4595/30Grundinformation
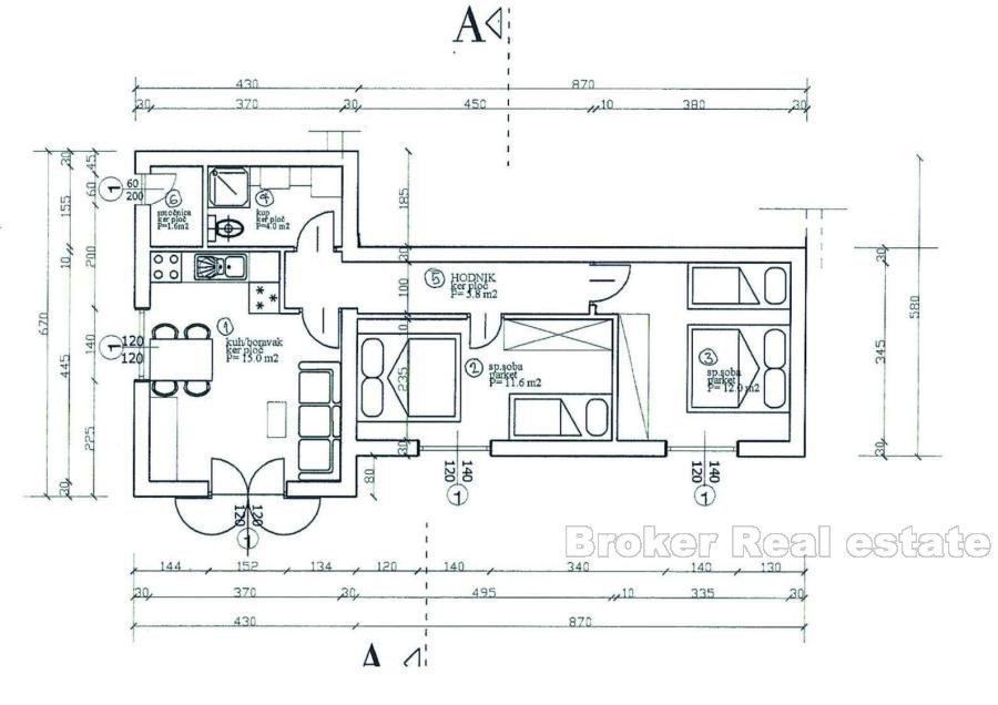
Wohnfläche:145 m2
Grundstücksgrösse:1227 m2
Schlafzimmer:4
Badezimmer:3
Etagen:2
Meeresentfernung:200 m
Über die Immobilie
Freistehendes Haus auf einem attraktiven Grundstück mit Meerblick in einer ruhigen Bucht an der Südseite der Insel Hvar. Das Haus ist mit Standortgenehmigung unvollendet und liegt in einem Pinienwald, intime Umgebung, ideal zum Entspannen. 200m vom Meer entfernt. Im Erdgeschoss befindet sich eine klimatisierte Wohnung von 30 m2. Erster Stock unfertig 115 m2 mit einer großen Terrasse, 3 Schlafzimmer, eine Küche und ein großes Wohnzimmer mit Meerblick, Bad und WC. Wasser und Strom sind vor Ort, Klärgrube und die Zufahrtsstraße zum Haus. Eigentum ist 1/1. Es besteht die Möglichkeit der Anpassung von Boden und Dachboden mit 6 Wohnungen. Das Land ist ideal für den Bau einer Villa mit Pool oder 2 Villen. Möglich, zusätzliche 1000m2 Land neben dem Haus zu kaufen.
Standort
Hvar, Dalmatien Inseln
Hvar ist eine kroatische Insel in der Adria vor der dalmatinischen Küste und liegt zwischen den Inseln Brač, Vis und Korčula. Seine Hänge sind mit Pinienwäldern bedeckt, mit Weinbergen, Olivenhainen, Obstgärten und Lavendelfeldern in den landwirtschaftlich genutzten Gebieten. Das Klima ist geprägt von milden Wintern und warmen Sommern mit vielen Sonnenstunden.
Suchen Sie etwas anderes?







