





Kroatia, Dalmatia kysten, Dubrovnik - Bygg land ved sjøen, til salgs.
ID: 4768/30Grunnleggende informasjon
Land plass:1182 m2
Sjøavstand:5 m
Ved sjøen
Eiendomsfordeler
- Havutsikt
Om eiendommen
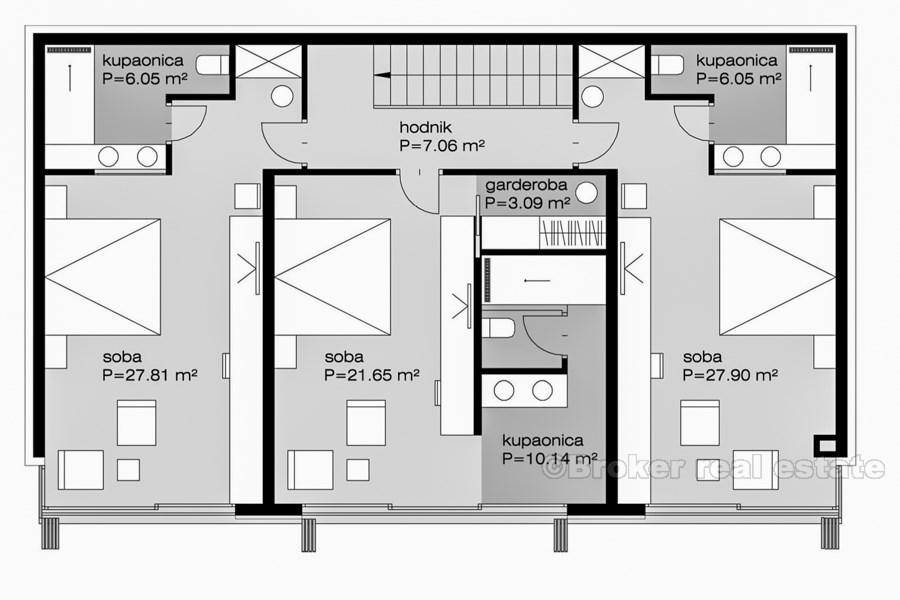
På kysten av Dubrovnik bay, i nærheten av gamlebyen i Dubrovnik, på en tomt på 1.182m2, ligger prosjekt av luksusvillaer, kaskade konstruksjon.
Hver villa består av tre soverom, tre bad, en toilett, komfortabel stue, kjøkken og romslig terrasse med grill og basseng.
Stilig design, middelhavsvegetasjon og vakker havutsikt tilbyr idyllisk harmoni og et hyggelig opphold.
Lokasjon
Dubrovnik, Dalmatia kysten
Dubrovnik er en by i det sørlige Dalmatia, Kroatia, ved Adriaterhavet. Det er et av de mest fremtredende turistmålene i Middelhavet, en havneby og sentrum av fylket Dubrovnik-Neretva. I 1979 ble byen Dubrovnik lagt til UNESCOs liste over verdensarvsteder som en anerkjennelse for sin enestående middelalderarkitektur og befestede gamleby.
Leter du etter noe annet?









