





Hrvatska, Dalmacija obala, Dubrovnik - Građevno zemljište uz more, na prodaju
ID: 4768/30Osnovni podaci
Zemljište:1182 m2
Udaljenost od mora:5 m
Prvi red
Prednosti nekretnine
- Pogled na more
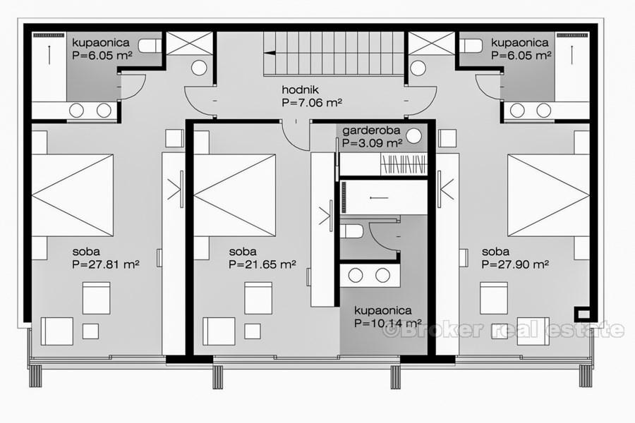
O nekretnini
Na obali Dubrovačke uvale, u blizini Starog grada Dubrovnika, na zemljištu od 1.182m2, nalazi se
projekt luksuznih vila, kaskadne gradnje.
Svaka vila se sastoji od tri spavaće sobe, tri kupaonice, toaleta, komfornog dnevnog boravka, kuhinje te prostrane terase s roštiljem i bazenom.
Moderan dizajn, mediteranska vegetacija te predivan pogled na more nude idiličnu
harmoniju te ugodan boravak.
Lokacija
Dubrovnik, Dalmacija obala
Dubrovnik je grad u južnoj Dalmaciji, Hrvatska, na Jadranskom moru. Jedno je od najistaknutijih turističkih odredišta na Mediteranu, morska luka i središte Dubrovačko-neretvanske županije. Godine 1979. grad Dubrovnik dodan je na UNESCO-ov popis mjesta svjetske baštine kao priznanje za njegovu izvanrednu srednjovjekovnu arhitekturu i utvrđeni stari grad.
Tražiš li nešto drugo?









