





Chorwacja, Dalmacja wybrzeże, Dubrovnik - Budowa działki nad morzem, na sprzedaż.
ID: 4768/30Podstawowe informacje
Przestrzeń lądowa:1182 m2
Odległość morska:5 m
Wybrzeże
Zalety nieruchomości
- Widok morza
O nieruchomości
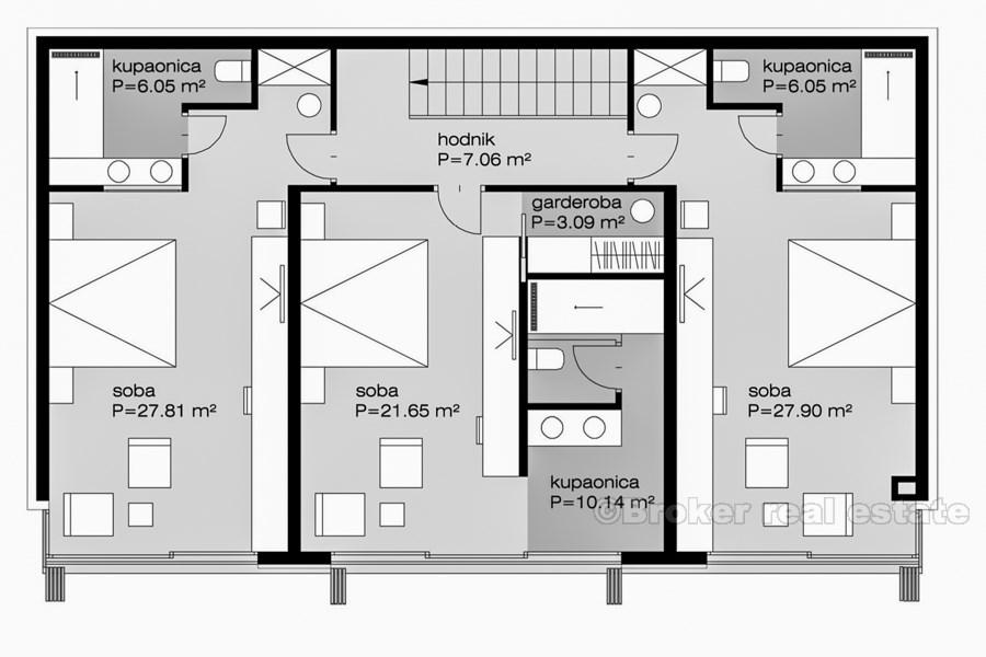
Na wybrzeżu zatoki Dubrownik, w pobliżu Starego Miasta w Dubrowniku, na działce o powierzchni 1.182 m2 znajduje się projekt luksusowych willi, kaskadowych konstrukcji.
Każda willa składa się z trzech sypialni, trzech łazienek, toaletki, komfortowego salonu, kuchni i przestronnego tarasu z grillem i basenem.
Stylowe wnętrza, śródziemnomorska roślinność i piękne widoki na morze oferują spokojną i harmonijną atmosferę.
Lokalizacja
Dubrovnik, Dalmacja wybrzeże
Dubrownik to miasto w południowej Dalmacji, w Chorwacji, nad Morzem Adriatyckim. Jest to jeden z najważniejszych ośrodków turystycznych w basenie Morza Śródziemnego, port morski i centrum żupani dubrownicko-neretwiańskiej. W 1979 roku miasto Dubrownik zostało wpisane na listę światowego dziedzictwa UNESCO w uznaniu jego wyjątkowej średniowiecznej architektury i ufortyfikowanej starówki.
Szukasz czegoś innego?









