




Croatie, Côte de Dalmatie, Dubrovnik - Terrain constructible en bord de mer, à vendre.
ID: 4768/30Informations de base
Espace terrestre:1182 m2
Distance de la mer:5 m
Front de mer
Avantages immobiliers
- Vue sur la mer
À propos de la propriété
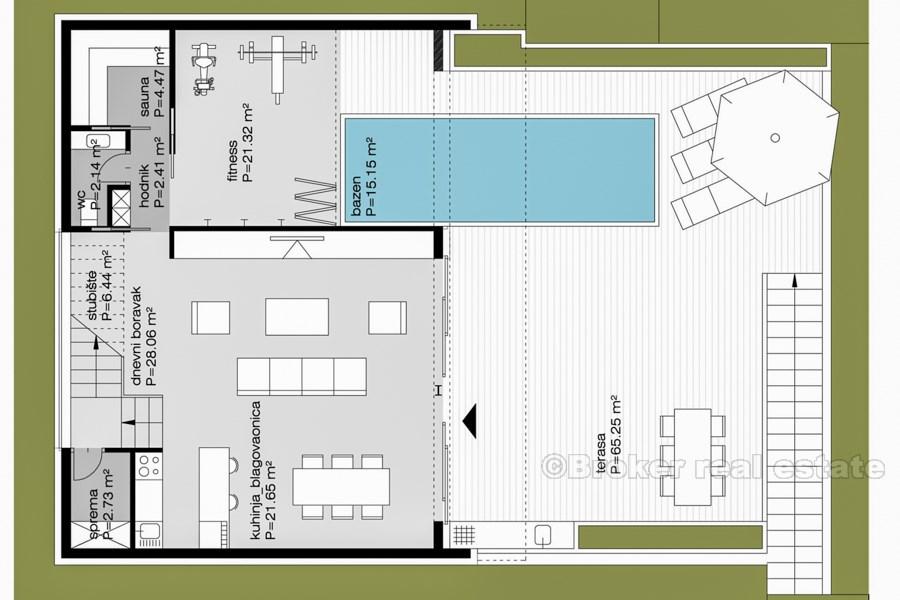
Sur la côte de la baie de Dubrovnik, près de la vieille ville de Dubrovnik, sur un terrain de 1.182m2, est situé projet de villas de luxe, construction en cascade.
Chaque villa se compose de trois chambres, trois salles de bains, une toilette, un salon confortable, des cuisines et une grande terrasse avec barbecue et piscine.
Un design élégant, une végétation méditerranéenne et de magnifiques vues sur la mer offrent une harmonie idyllique et un séjour agréable.
Emplacement
Dubrovnik, Côte de Dalmatie
Dubrovnik est une ville du sud de la Dalmatie, en Croatie, au bord de la mer Adriatique. C'est l'une des destinations touristiques les plus importantes de la Méditerranée, un port maritime et le centre du pays. En 1979, la ville de Dubrovnik a été ajoutée à la liste du patrimoine mondial de l'UNESCO en reconnaissance de son architecture médiévale exceptionnelle et de sa vieille ville fortifiée.
Vous cherchez autre chose?
















