





Chorwacja, Dalmacja Wyspy, Pasman - 12 apartamentów nad morzem, na sprzedaż
ID: 2015/75Podstawowe informacje
Przestrzeń lądowa:835 m2
Odległość morska:10 m
Wybrzeże
Zalety nieruchomości
- Widok morza
Udogodnienia
- Certyfikat Energetyczny
- Parking
O nieruchomości
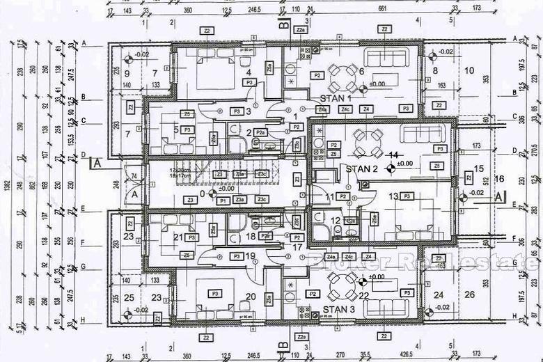
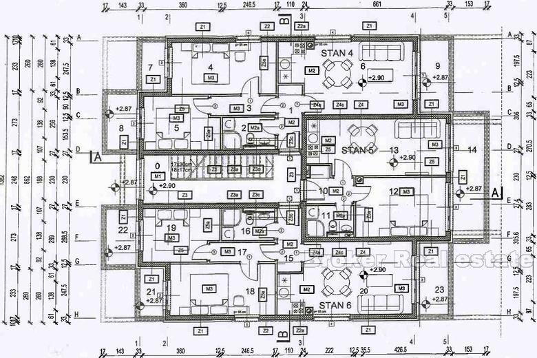
Mniejszy budynek mieszkalny z 12 apartamentami w budynku znajduje się na wyspie Pasman, w pierwszym rzędzie do morza.
Składa się z 4 kondygnacji, parteru, pierwszego piętra, drugiego piętra i poddasza.
Na każdym piętrze znajdują się trzy apartamenty, dwie sypialnie i jedna sypialnia.
Apartament z jedną sypialnią o powierzchni 39m2 składa się z przedpokoju, przedpokoju, sypialni, kuchni, jadalni, salonu i balkonu.
Apartamenty z dwiema sypialniami o powierzchni 59 m² składają się z przedpokoju, przedpokoju, dwóch sypialni, kuchni, jadalni, salonu i balkonu.
Oczekiwanie na zakończenie na październik 2017.
Lokalizacja
Pasman, Dalmacja Wyspy
Pašman to wyspa na Adriatyku u wybrzeży północnej Dalmacji w Chorwacji o powierzchni 60,11 km2, położona na południe od Zadaru, otoczona wyspami Ugljan na północnym zachodzie, Iž na zachodzie oraz Dugi Otok i Žut na południowym zachodzie . Spośród wszystkich wysp chorwackiego archipelagu to właśnie Pašman ma największą powierzchnię zieloną, biorąc pod uwagę jej całkowitą powierzchnię.
Szukasz czegoś innego?






