





Kroatien, Dalmatien Inseln, Pasman - 12 Wohnungen am Meer, zum Verkauf
ID: 2015/75Grundinformation
Grundstücksgrösse:835 m2
Meeresentfernung:10 m
Direkt am Meer
Immobilienvorteile
- Meerblick
Annehmlichkeiten
- Energiezertifikat
- Modern
- Parken
Über die Immobilie
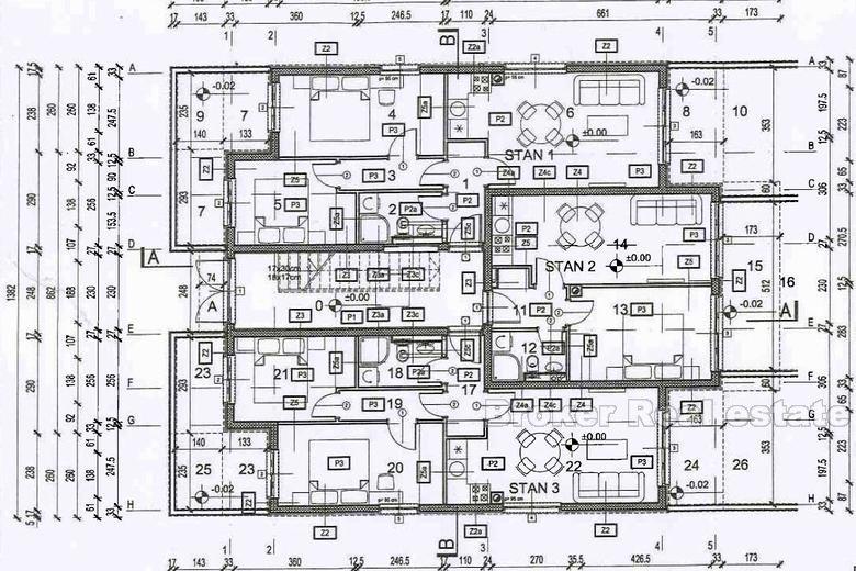
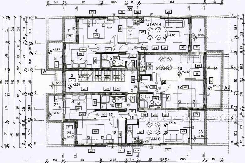
Kleinere Wohngebäude mit 12 Wohnungen im Gebäude befindet sich auf der Insel Pasman, in der ersten Reihe zum Meer.
Es besteht aus 4 Etagen, Erdgeschoss, ersten Stock, zweiten Stock und Dachboden.
Auf jeder Etage befinden sich drei Wohnungen, zwei Schlafzimmer und ein Schlafzimmer.
Ein-Zimmer-Wohnung Wohnfläche von 39m2 besteht aus einem Eingangsbereich, Flur, Schlafzimmer, Küche, Esszimmer, Wohnzimmer und Balkon.
Zwei-Zimmer-Wohnungen Wohnfläche von 59m2 besteht aus einem Eingangsbereich, Flur, zwei Schlafzimmer, Küche, Esszimmer, Wohnzimmer und Balkon.
Die Fertigstellung wird für Oktober 2017 erwartet.
Standort
Pasman, Dalmatien Inseln
Pašman ist eine adriatische Insel vor der Küste Norddalmatiens in Kroatien mit einer Fläche von 60,11 km2, liegt südlich von Zadar und ist im Nordwesten von den Inseln Ugljan, im Westen von Iž und im Südwesten von Dugi Otok und Žut umgeben . Von allen Inseln des kroatischen Archipels verfügt Pašman über die größte Grünfläche im Verhältnis zur Gesamtfläche.
Suchen Sie etwas anderes?






