





Kroatien, Dalmatien Küste, Split stadt, Split 3 - Mehrzweckbürofläche auf dem Universitätsgelände
ID: 2016/681Grundinformation
Wohnfläche:222 m2
Schlafzimmer:11
Badezimmer:2
Annehmlichkeiten
- Energiezertifikat
Über die Immobilie
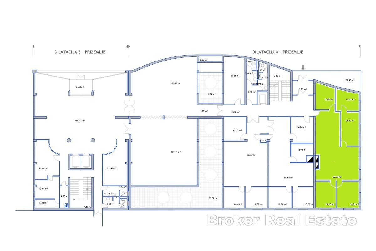
Diese Mehrzweckbürofläche befindet sich im Erdgeschoss eines Bürogebäudes auf dem Universitätsgelände und umfasst eine Gesamtfläche von 222 m². Sie besteht aus zwei räumlich getrennten Büroeinheiten mit 126 m² bzw. 96 m², die sich aus mehreren kleineren, nebeneinanderliegenden Räumen zusammensetzen. Diese können je nach Bedarf des Mieters zu einer Einheit verbunden werden.
Die Sanitäranlagen stehen allen Mietern der Etage zur Verfügung. Die Fläche wurde viele Jahre als Labor genutzt, wird derzeit leer vermietet und muss für ihren jetzigen Zweck komplett renoviert werden. Dank zahlreicher Fenster ist die Fläche hell und lichtdurchflutet. Zudem bietet sie eine gute Anbindung an die Hauptstraßen.
Vor dem Gebäude befindet sich ein großzügiger, kostenloser Parkplatz. Weitere Parkmöglichkeiten gibt es in unmittelbarer Nähe. Der Zugang zum Gebäude erfolgt über den Haupteingang mit Rezeption und Sicherheitsdienst sowie über einen separaten Eingang von der Straße direkt in die Räumlichkeiten.
Angesichts des Potenzials des Standorts, der hohen Studierendenzahl und des attraktiven Geschäftsumfelds bietet das Objekt hervorragende Nutzungsmöglichkeiten für verschiedene Aktivitäten (Büros, Arztpraxen, Kliniken und andere Gesundheits- und Dienstleistungseinrichtungen).
Standort
Split stadt, Dalmatien Küste
Split ist nach der Hauptstadt Zagreb die zweitgrößte Stadt Kroatiens, die größte Stadt Dalmatiens und die größte Stadt an der kroatischen Küste. Es liegt am Ostufer der Adria und erstreckt sich über eine zentrale Halbinsel und deren Umgebung. Als überregionaler Verkehrsknotenpunkt und beliebtes Touristenziel ist die Stadt mit den adriatischen Inseln und der Apenninenhalbinsel verbunden.
Suchen Sie etwas anderes?








