





Kroatien, Dalmatien Küste, Split stadt - Geschäftsräume zum Verkauf
ID: 2024/32Grundinformation
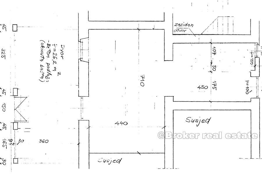
Wohnfläche:50 m2
Grundstücksgrösse:25 m2
Schlafzimmer:1
Badezimmer:1
Etagen:1
Annehmlichkeiten
- Energiezertifikat
Über die Immobilie
Geschäftsräume in einer sehr belebten Straße in der Gegend von Lučac machen es zu einem sehr attraktiven Verkaufsraum. Es befindet sich im Keller und ist nach Süden ausgerichtet. Es besteht aus einem größeren Ausstellungsraum, einem kleineren Büroraum, einem Flur und einer Sanitäreinrichtung. Aufgrund der Nähe zum Zentrum ist der Raum für verschiedene Zwecke geeignet. Die Gesamtfläche der Geschäftsfläche beträgt 50 m2 + 25 m2 eingezäunten Innenhof. Der Geschäftsraum ist in gutem Zustand und erfordert keine größeren Investitionen.
Standort
Split stadt, Dalmatien Küste
Split ist nach der Hauptstadt Zagreb die zweitgrößte Stadt Kroatiens, die größte Stadt Dalmatiens und die größte Stadt an der kroatischen Küste. Es liegt am Ostufer der Adria und erstreckt sich über eine zentrale Halbinsel und deren Umgebung. Als überregionaler Verkehrsknotenpunkt und beliebtes Touristenziel ist die Stadt mit den adriatischen Inseln und der Apenninenhalbinsel verbunden.
Suchen Sie etwas anderes?








