





Kroatien, Dalmatien Küste, Vodice - Luxuriöse Wohnung in einem Neubau mit Pool
ID: 2043/210Grundinformation
Wohnfläche:112 m2
Grundstücksgrösse:180 m2
Schlafzimmer:2
Badezimmer:3
Meeresentfernung:380 m
Immobilienvorteile
- Meerblick
- Schwimmbad
- Neubau
- Luxus
Annehmlichkeiten
- Energiezertifikat
- Modern
- Parken
Über die Immobilie
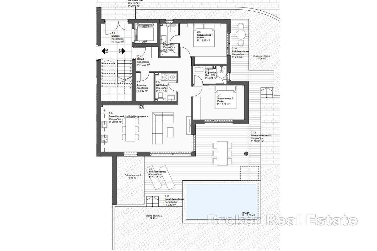
Die Wohnung S2 befindet sich in einem kleineren, neu errichteten Gebäude mit insgesamt sechs Wohnungen. Sie liegt im Erdgeschoss und verfügt über einen großzügigen Garten (180 m²). Zum Außenbereich gehören ein Parkplatz, Terrassen und ein 18 m² großer Pool. Die Nettowohnfläche inklusive Nebenkosten beträgt 112 m², die tatsächliche Wohnfläche 81 m².
Beim Betreten der Wohnung gelangt man in den Flur, von dem aus man die Küche, das Esszimmer und das 30 m² große Wohnzimmer erreicht. Von den Gemeinschaftsräumen aus hat man durch Glaswände direkten Zugang zur Terrasse und zum Garten mit Pool.
Der Wohnbereich selbst besteht aus einem offenen Wohnkonzept mit Gemeinschaftsräumen, zwei Schlafzimmern mit jeweils eigenem Bad, WC, Waschküche und Abstellraum. Ein außergewöhnlich modernes Projekt mit höchsten Baustandards in ruhiger Lage – ideal für Familien.
Standort
Vodice, Dalmatien Küste
Vodice ist eine Stadt, Gemeinde und Hafen in der Gespanschaft Šibenik-Knin, Kroatien. Das ehemalige Fischerdorf verwandelte sich in der zweiten Hälfte des 20. Jahrhunderts in ein Touristenziel, als es regelmäßig zu den meistbesuchten dalmatinischen Reisezielen zählte. Vodice liegt in einer weiten Bucht, 11 km nordwestlich von Šibenik, 85 km von Split und 62 km südöstlich von Zadar.
Suchen Sie etwas anderes?







