Na prodaju

Na prodaju





Hrvatska, Dalmacija otoci, Brač - Zemljište sa građevinskom dozvolom
ID: 2041/45Cijena€170,000
ID: 2041/45
Osnovni podaci
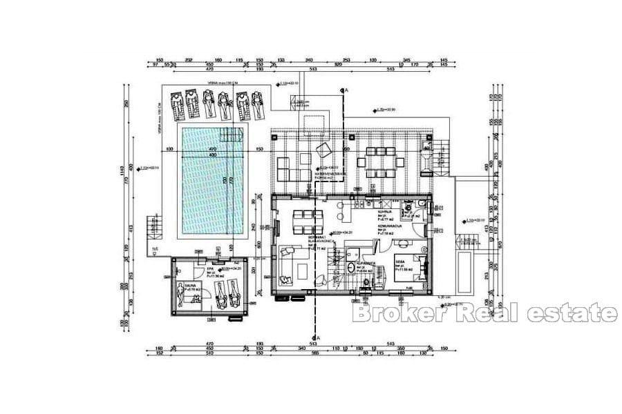
Zemljište:540 m2
Udaljenost od mora:400 m
Prednosti nekretnine
- Pogled na more
O nekretnini
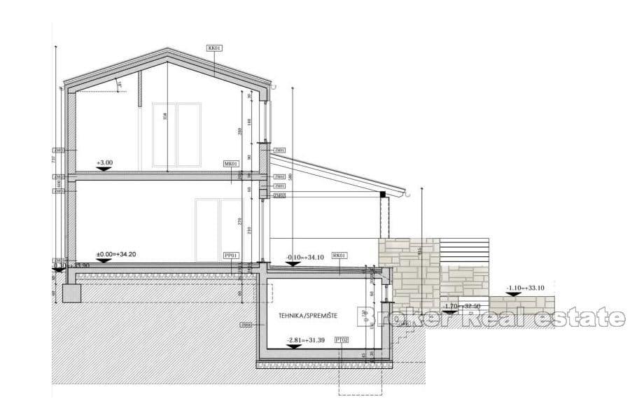
Građevinsko zemljište s dozvolom smješteno na otoku Braču u centru mjesta ukupne površine od 540 m2. Prodaje se zemljište s projektom za vilu bruto površine od 175 m2 i pomoćni objekt te bazen od 28 m2. Sa zemljišta se pruža pogled na more.
Sva potrebna infrastruktura se nalazi tik uz parcelu.
Lokacija zemljišta je u centru mjesta na udaljenosti od 400 m od mora.
Lokacija
Brač, Dalmacija otoci
Brač je s površinom od 396 četvornih kilometara najveći otok u Dalmaciji, te treći po veličini otok u Jadranskom moru. Brač ima dugu i naboranu obalu s brojnim manjim i većim uvalama. Posebno su uočljive prirodne luke Supetar, Splitska, Pučišća, te Povlja, Sumartin, Milna i Bobovišća.
Brač nekretnine
Tražiš li nešto drugo?










