





Kroatien, Dalmatien Inseln, Brac - Grundstück mit Baugenehmigung
ID: 2041/45Grundinformation
Grundstücksgrösse:540 m2
Meeresentfernung:400 m
Immobilienvorteile
- Meerblick
Über die Immobilie
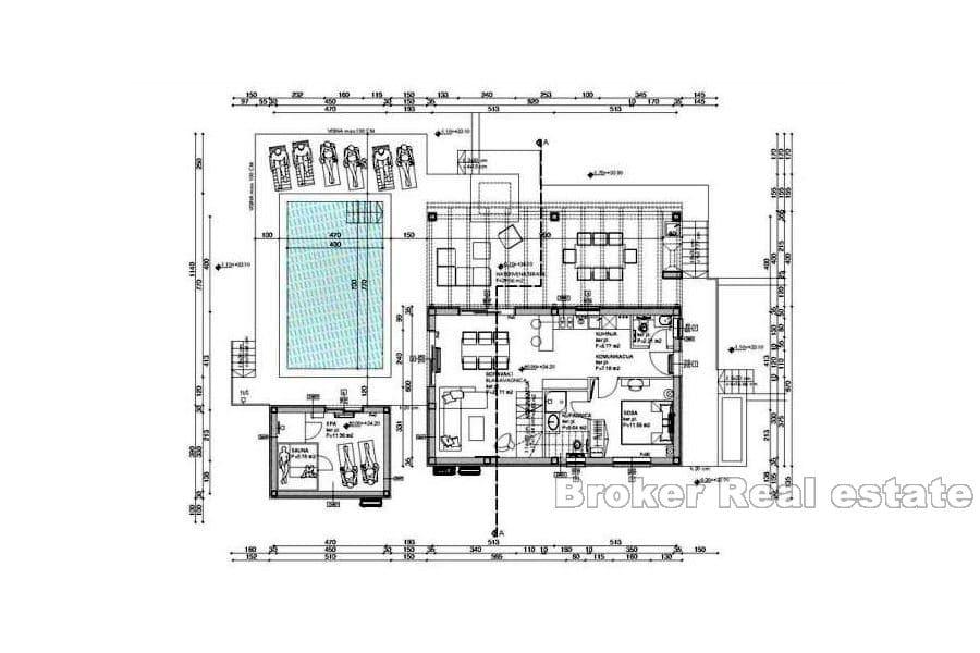
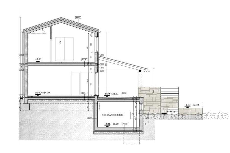
Baugrundstück mit Genehmigung auf der Insel Brač im Zentrum der Stadt mit einer Gesamtfläche von 540 m2. Grundstück zum Verkauf mit einem Projekt für eine Villa mit einer Bruttofläche von 175 m2 und einem Nebengebäude und einem Pool von 28 m2. Das Land bietet einen Blick auf das Meer.
Alle notwendige Infrastruktur (Strom und Wasser) befindet sich direkt neben dem Grundstück.
Die Lage des Grundstücks befindet sich im Zentrum der Stadt, 400 m vom Meer entfernt.
Standort
Brac, Dalmatien Inseln
Brač ist mit einer Fläche von 396 Quadratkilometern die größte Insel Dalmatiens und die drittgrößte Insel der Adria insgesamt. Brač hat eine lange und gefaltete Küste mit zahlreichen kleineren und größeren Buchten. Besonders hervorzuheben sind die Naturhäfen Supetar, Splitska, Pučišća sowie Povlja, Sumartin, Milna und Bobovišća.
Suchen Sie etwas anderes?










